Быстро. Качественно. Недорого.

Максим К maxi-k

Рейтинг: 165
не верифицирован
Всего отзывов: 0
  • Активность:
  • Работ в портфолио: 75
  • Типовых услуг: 0
  • Работ на продажу: 0
  • Возраст: 10 лет
  • Зарегистрирован: 05.07.2015
Был на сайте:

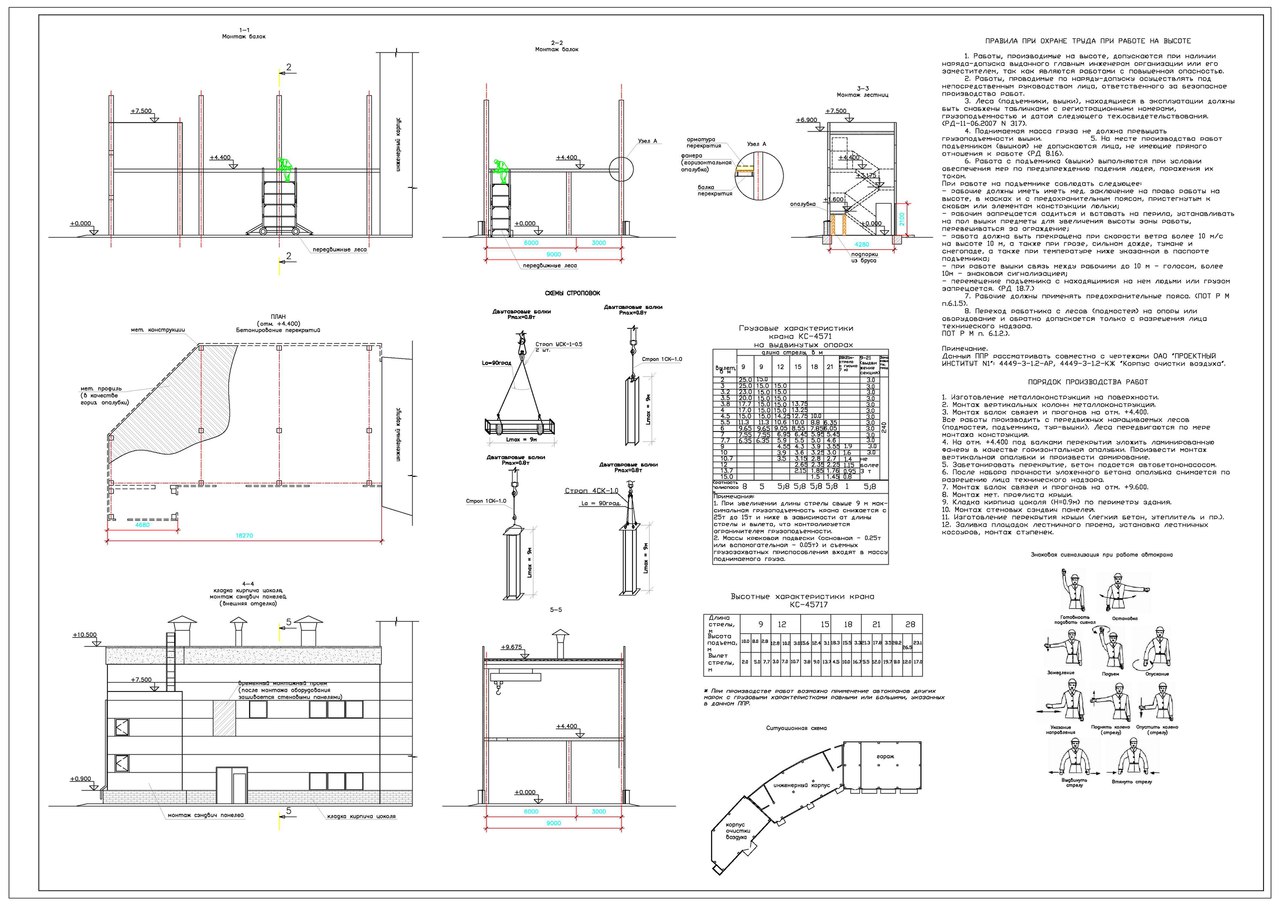
Строительство промышленного здания

Описание

Строительство промышленного здания. Более 10 чертежей + пояснительная записка.

Презентация проекта

pic2437851.jpg
ZUOex8QfIbY.jpg

Оценили проект:

0