Нет ничего не возможного!

Валентина Маслова maslovavalentina

Рейтинг: 69
не верифицирован
Всего отзывов: 0
  • Работ в портфолио: 9
  • Типовых услуг: 0
  • Работ на продажу: 0
Была на сайте:

Обо мне

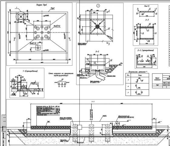
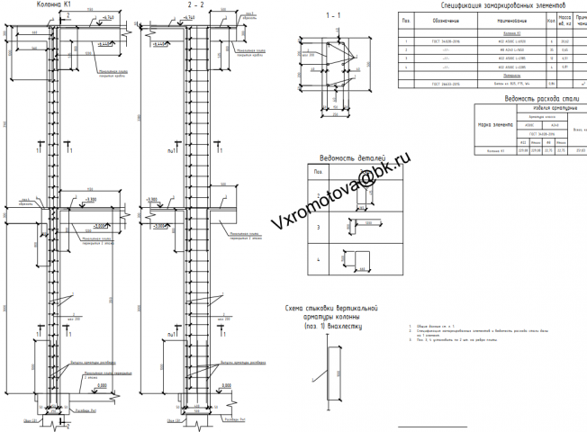
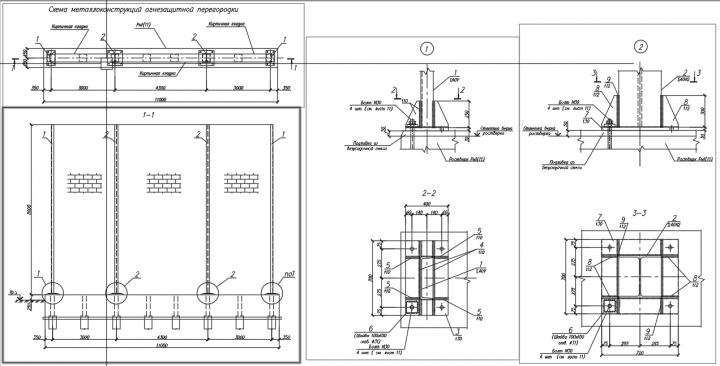
Инженер- проектировщик 1 категории. ПГС. Проектирование марок КЖ, КМ, АС, КР. Пояснительные записки.Выполняю работы ПОС, ПОД по электроснабжению и строительству ВЛ и Подстанций, также по строительству ПГС. Прохождение гос и не гос экспертизы. Промышленные объекты, нефтяные и газоперерабатывающий объекты Роснефти, ВЛ и подстанции. Состою в международной лиге проектировщиков. Стаж работы более 14 лет.