Нет ничего не возможного!

Валентина Маслова maslovavalentina

Рейтинг: 69
не верифицирован
Всего отзывов: 0
  • Работ в портфолио: 9
  • Типовых услуг: 0
  • Работ на продажу: 0
Была на сайте:

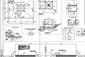
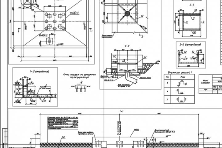
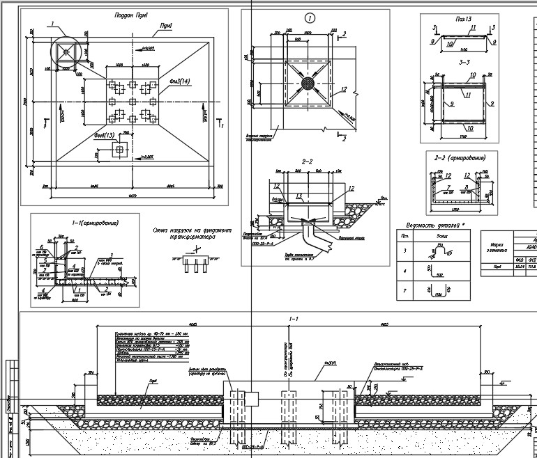
Поддон для масла

Описание

Выполнение чертежа марки КЖ со всеми спецификациями (маслосборник).

Презентация проекта

pic3996019.jpg

Оценили проект:

0