__Образование__ Московский Государственный Строительный Университет (бывш. МИСИ им.Куйбышева); специальность "Проектирование зданий и сооружений"
AutoCAD, Revit, 3Ds max
Авторемонтная мастерская с магазином автопринадлежностей
Общеобразовательная школа на 550 мест в городе Киржач
Проект многоэтажного жилого здания (22 этажа)
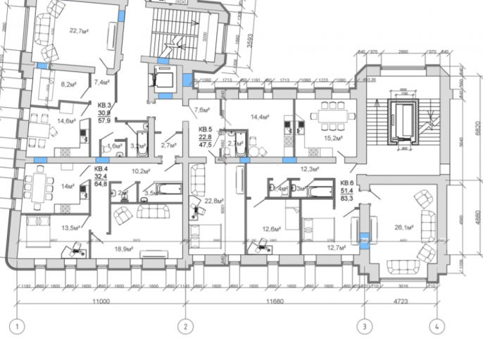
Модернизация планировочного решения жилого дома истор. застройки
Дошкольное образовательное учреждение на 120 мест
Детский сад
Автосервис
Горы
Академический рисунок (Сократ)