Рейтинг: 80
не верифицирован
Всего отзывов: 0
  • Работ в портфолио: 10
  • Типовых услуг: 0
  • Работ на продажу: 0
Была на сайте:

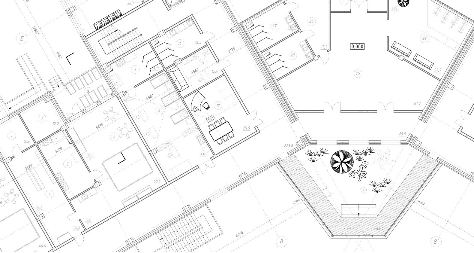
Дошкольное образовательное учреждение на 120 мест

Используемые навыки:

Описание

Проект детского дошкольного образовательного учреждения переменной этажности на 120 мест.
Состав групп детского сада: группы для детей от 3 мес. до 3-х лет - 6 шт; группы для детей от 3-х до 7-ми лет - 8 шт.
В проект входят: пояснительная записка, планы 1 и 2 этажей, разрезы конструктивные (приложены).

Презентация проекта

pic3554668.jpg

Оценили проект:

0