Рейтинг: 46
не верифицирован
Всего отзывов: 0
  • Работ в портфолио: 6
  • Типовых услуг: 0
  • Работ на продажу: 0
Был на сайте:

Cпециализации

Обо мне

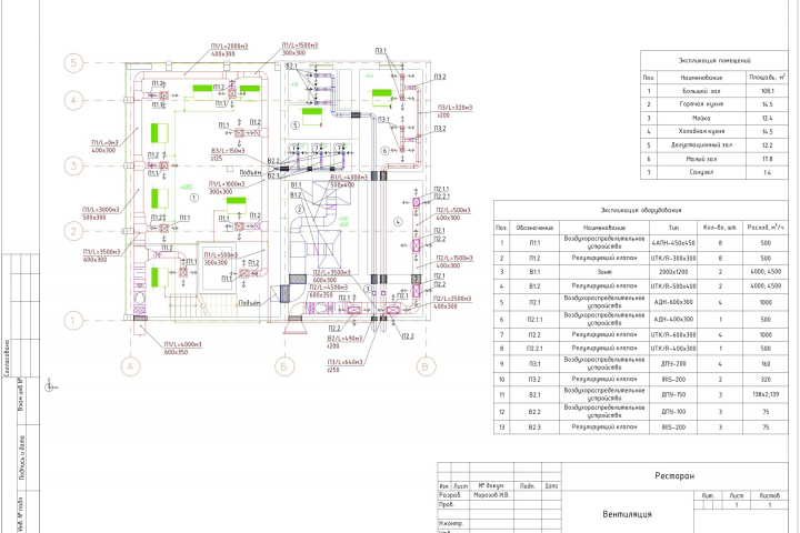
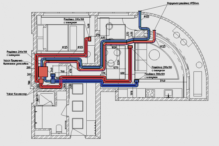
Работаю в сфере энергетики шесть лет. За это время охватил большой спектр направлений: электроэнергетика, теплотехника, водоснабжение и водоотведение. Спецализируюсь на кондиционировании и вентиляции жилых зон и предприятий общественного питания. Делаю проекты качественно и в срок, сопровождаю в дальнейшем при монтаже и эксплуатации. Количество правок неограничено.

Окончил энергетический факультет Южно-Уральского Государственного Университета, защитил магистерскую диссертацию с отличием.