Рейтинг: 46
не верифицирован
Всего отзывов: 0
  • Работ в портфолио: 6
  • Типовых услуг: 0
  • Работ на продажу: 0
Был на сайте:

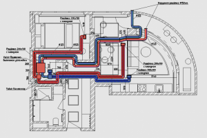
Система вентиляции апартаментов

Описание

Спроектирована и реализована система вентиляции жилых апартаментов: приточно-вытяжная установка и распределительная сеть воздуховодов.

Ссылки на примеры реализации

 ivanmorozov1860.nicepage.io

Презентация проекта

pic4481318.jpg

Оценили проект:

0