Жить так, как другие не могут.

Дмитрий Ничипоренко interiers09

Рейтинг: 91
не верифицирован
Всего отзывов: 0
  • Работ в портфолио: 41
  • Типовых услуг: 0
  • Работ на продажу: 0
  • Зарегистрирован: 18.01.2021
Был на сайте:

Обо мне

Здравствуйте! Меня зовут Дмитрий, Я - инженер конструктор с 4-х летним стажем. Имею диплом о законченном высшем образовании по специальности Проектирование Зданий и Сооружений.
- На моем счету около 6-ти полностью завершенных объектов капитального строительства. 3 из которых - объекты энергетики, расположены в Норильске, на территории многолетнемерзлых грунтов.
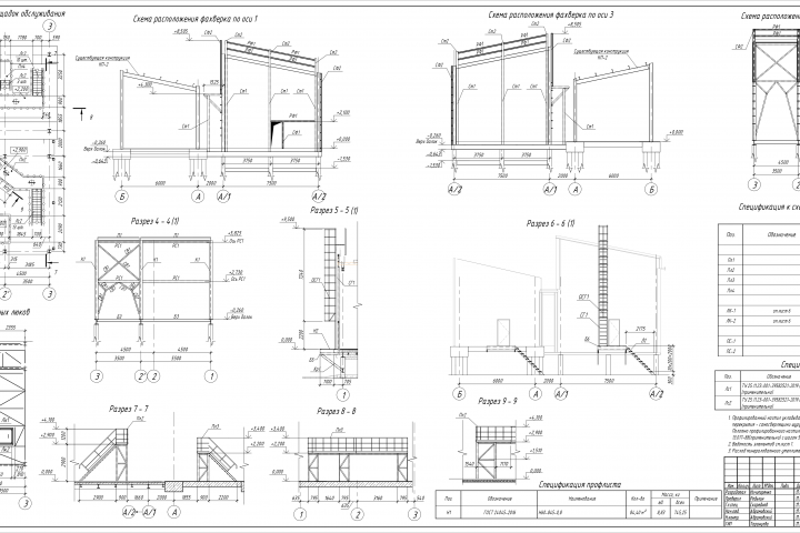
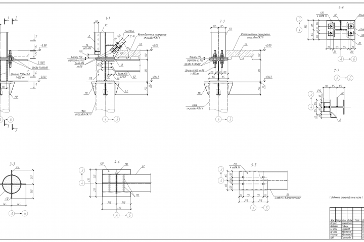
- Произвожу расчеты любых конструкций КМ, КЖ в программном комплексе SCAD Office.
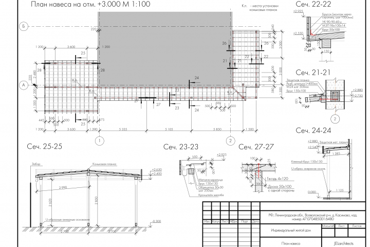
- Разрабатываю Стадии П, Р раздела КР. (Конструктивные решения, подсчет спецификаций элементов, разработка конструктивных узлов, расчет конструкций)
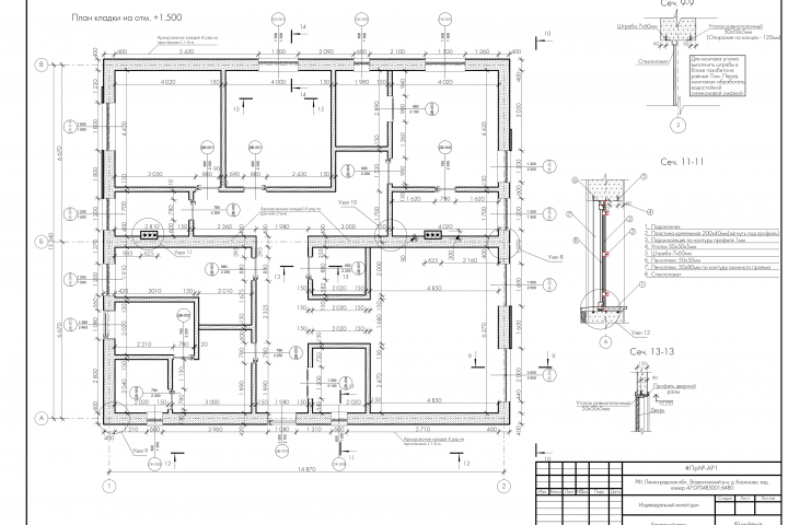
- Имею опыт в разработке стадии П раздела АР.
- Имею опыт в построении цифровой информационной модели (ЦИМ) по СП 333.1325800.2020, а именно построение ЦИМ фельдшерско-акушерского пункта, разделы: АР, КР, ЭОМ, ВК, ОВ, ТХ, ПЗУ.
- Имею опыт в разработке дизайн-проектов интерьеров квартир, коттеджей.

Подстроюсь под любые пожелания заказчика, помогу, подскажу, проконсультирую. Буду рад сотрудничеству!))

Проекты в портфолио