Меняя окружающее пространство - мы меняемся сами!
Солнечный санузел
Работа 3456240
Работа 3102402
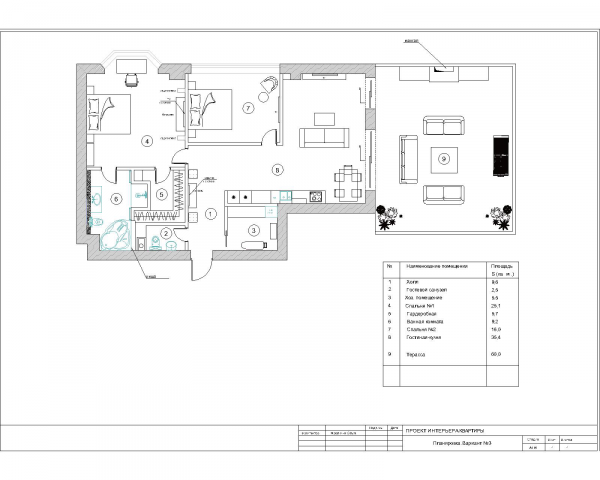
ЖК "Символ" 92 кв
Кафе 2023 г.
Детская комната в стиле "Эклектика" г. Москва квартира 64 кв.м.
Квартира . г Москва. 63 кв.м.
Квартира в стиле "Фьюжн" 2024 г.
Офис г.Москва
Завод (1этаж,планировочное решение)
Ванная комната
Детская комната
столовая
планировочное решение ЖК Символ
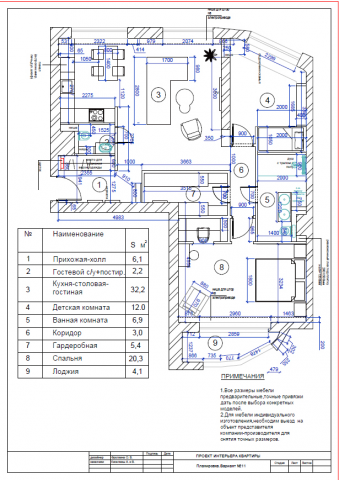
планировка