Проектирование гражданских и промышленных объектов, инженерные сети.Опыт проектирования более 15 лет.
Дамир - замечательный заказчик. Умеет четко поставить техзадание, очень приятен в общении. Своевременная оплата. Рекомендую! Было…
Наружные сети водоснабжения и канализации
Реконструкция сетей ГВС ХВС 7000 кв.метров
Реконструкция канализационных сетей 7000 кв.метров
Насосная разрезы станции
Насосная 2го подъема демонтаж
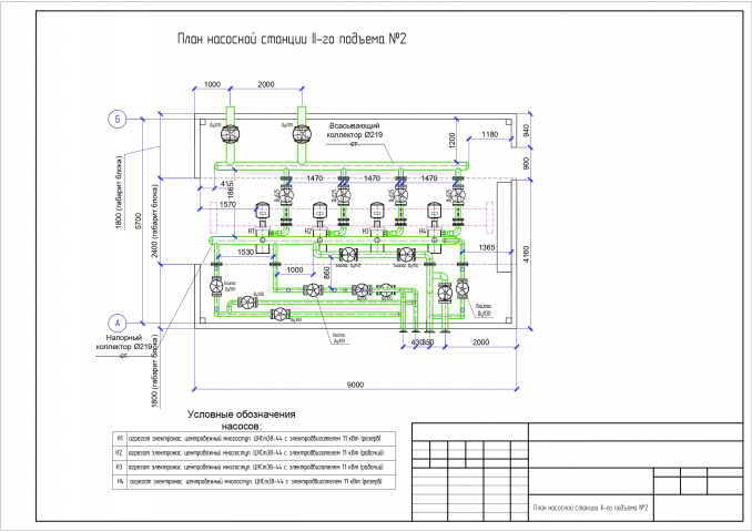
Насосная 2го подъема
Насосная 2го подъема реконструкция
Насосная 3го подъема
Насосная ТХ Подмосковье 20000м.куб/сутки
Насосная 1го подъема
Профиль канализационной сети К1-2
Профиль канализационной сети К1-1
План капитального ремонта системы водоотведения
Деталировка колодца К1
Наружные сети водоснабжения 6 км
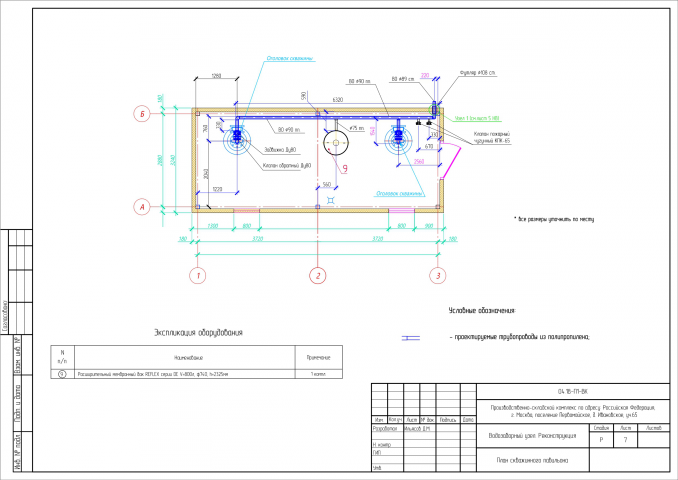
Схемы систем В1 В2 Т3 Т4
Профиль водопроводной сети
Профиль Канализационной сети
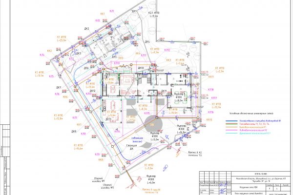
План НВК
Узлы Ввода В1 и К1
Схемы систем К1 и К3
Планы систем В1, В2, Т3, Т4, К1 и К3 АБК
отопление производственных помещений 3500кв.м.