Архитектор 15 лет стажа в проектной фирме.Фотограф 6 лет стажа. Фотосессии любых направлений.
Таро
Разбивочный план для ОДИ (маломобильных групп населения)
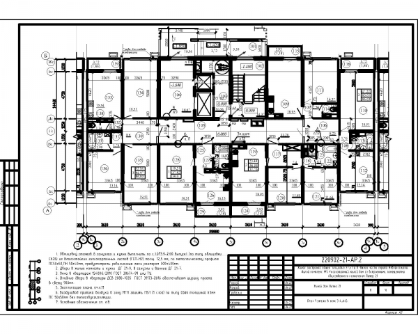
План 1 этажа многоэтажного жилого дома
Генплан жилого дома
Фасад жилого дома
Портретные фотографии. ретуш. 89183127030
Фотосессия на праздниках
ню сьемкка, будуар
Таролог
Архитектура . Проектирование жилых домов