Проектирование литейных завод и производств.
Экономическое обоснование перед серьезные капитальными затратами
Разработка проектной документации для строительства заводов
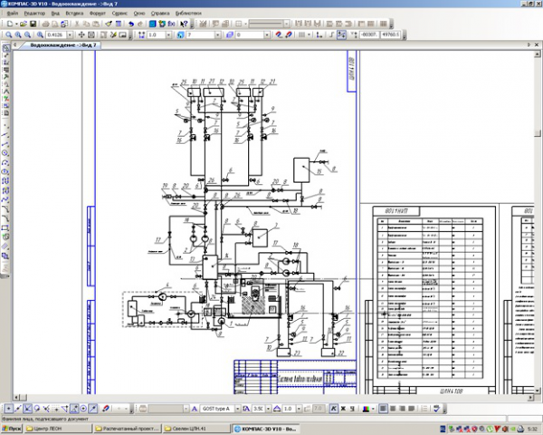
Оборотное водоснабжение А
раздел Водоснабжение и Канализация в литейных и плавильных цехах
Оборотное водоснабжение/охлаждение. Проекты.
Система оборотного водоохлаждения оборудования в литейной цехе.
Подбор материалов для футеровки печей, тепловые расчеты.
Проектирование блоков футеровки.
Модернизация проходных печей, применение современных материалов
Проект модернизации нагревательных печей керамоволокном.
Промышленные печи для машиностроения и металлургии
Проект модернизации печи СДО-90.140.80 9х14х8 метров
Проекты демонтажа вагранки и мартена
Разработка проектной документации литейных заводов и цехов
Проекты демонтажа предприятий и оборудования литейных цехов.
Проекты Литейных и плавильных заводов. Опыт.
Проектирование различных промышленных печей.
Проект футеровки печи, перевод на современные материалы
Проекты - Отопление.
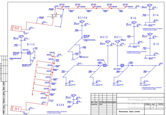
Проект приточной вентиляции и дымоудаления
Отопление и теплоснабжение.
Раздел газоснабжение литейных и плавильных цехов. Консультации.
Проект вентиляции литейного цеха.