лесная панорама
проект для известного петербургского бюро
барнхаусик интерьер
проект реконструкции и расширения сада эпохи ренессанс
здание из морских контейнеров
таунхаус
загородные дома
модель коттеджа
коттеджи, северный стиль
Рабочее проектирование
эскизный проект многоэтажного квартала
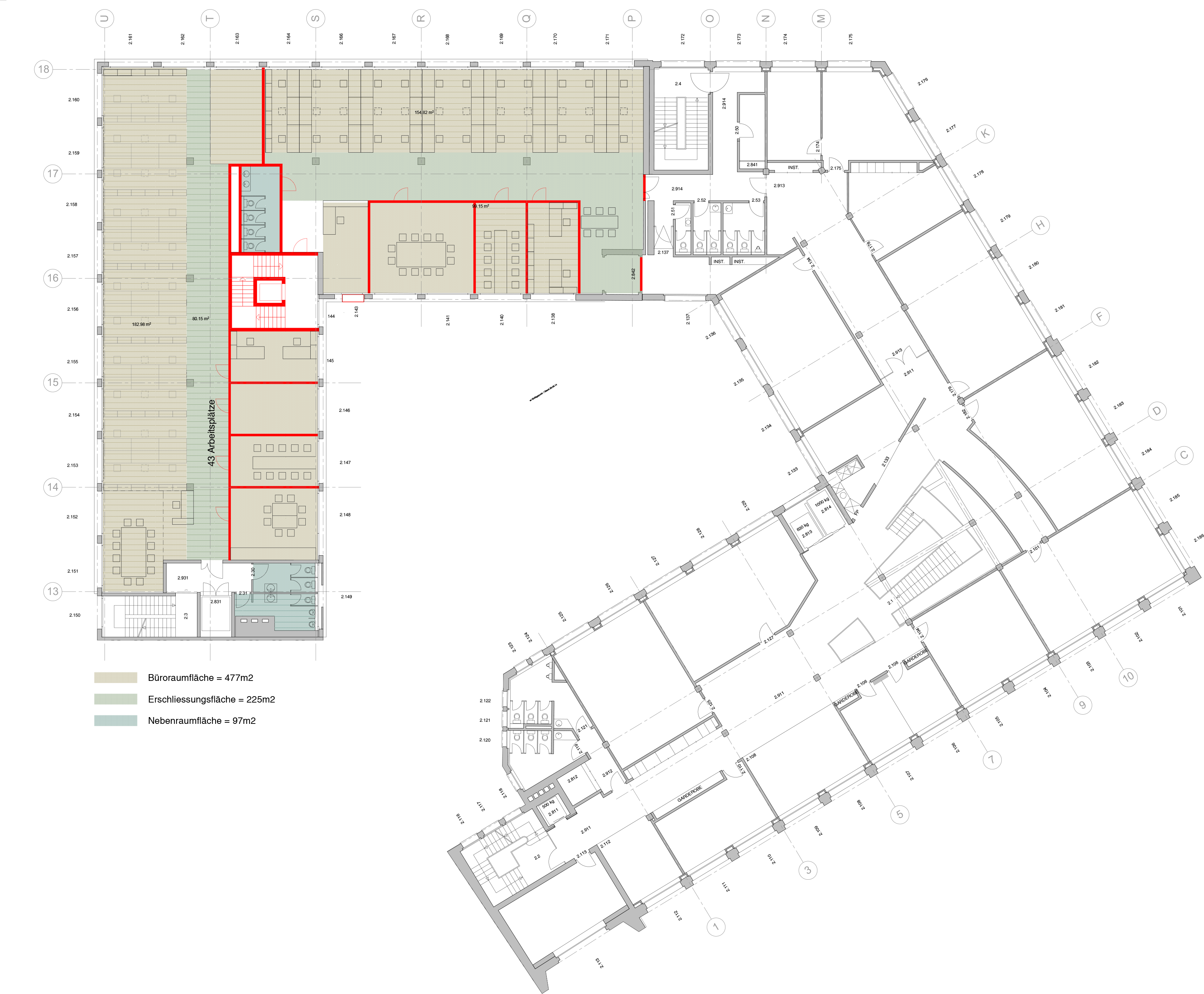
реконструкция офисного здания
мастерпланы
мебель