Детская для мальчика 2 лет. Фотоколлаж
Детская 1. Фотоколлаж.
Кухня в однокомнатной квартире. Эскиз "от руки"
Прихожая в однокомнатной квартире. Эскиз "от руки"
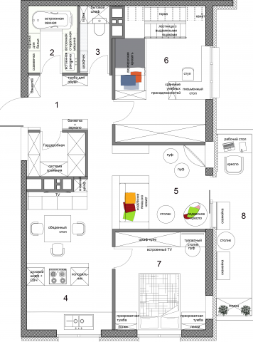
Квартира. Планировочное решение.
Интерьер хамама. Чертежи
Эскизы сан узлов для гостиницы. Минимализм
Оформление детского уголка в комнате
Интерьер хамама
Фото квартиры. Комната.
Фото квартиры. Кухня
Фото квартиры. Прихожая.
Фото квартиры. Ванная
Фото квартиры. Ванная, туалет.