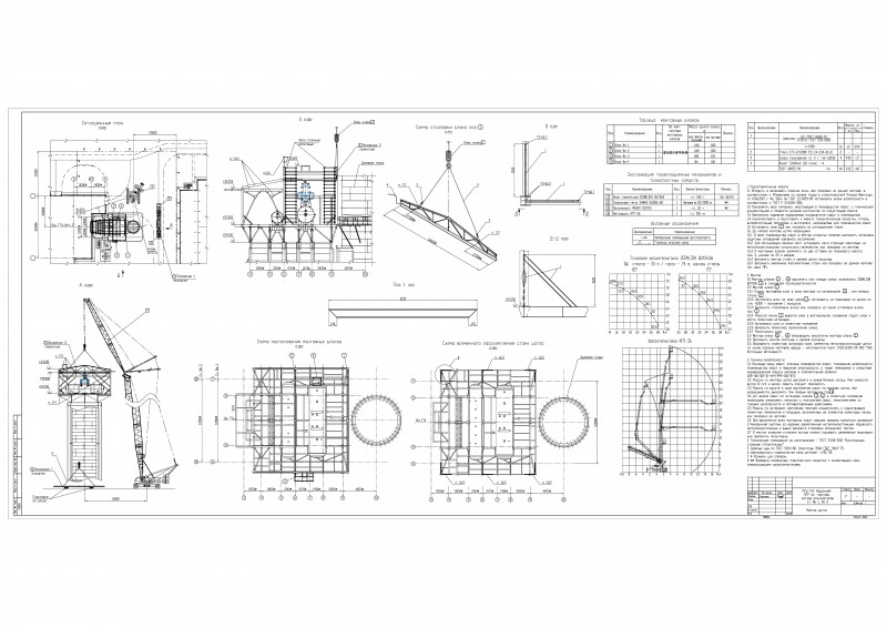
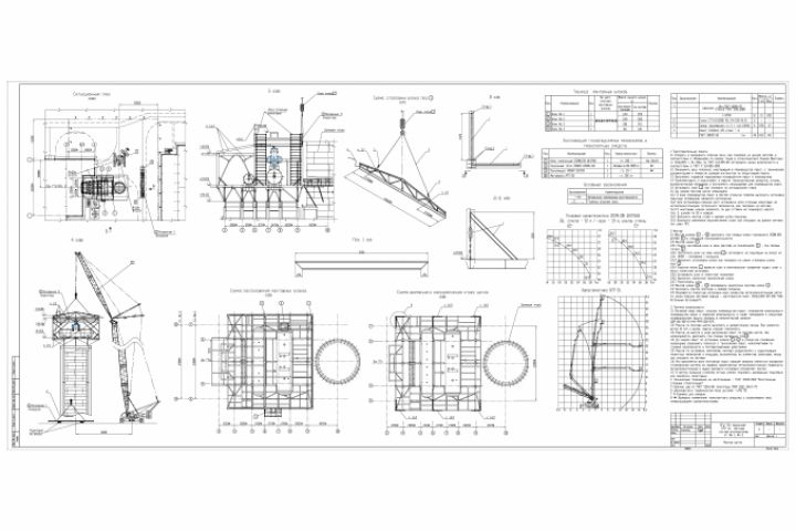
Схема монтажа металлоконструкций шатра котла-утилизатора ТЕС
Для полной функциональности этого сайта необходимо включить JavaScript.
Харьков
32 года
На сайте с: 28.03.2020
Андрей Слесарев
andreyslesarev
Рейтинг: 56
не верифицирован
Всего отзывов:
0
Работ в портфолио:
6
Типовых услуг:
0
Работ на продажу:
0
Был на сайте:
2021-08-15 в 00:33
inbox
Предложить работу
Добавить в избранное
Добавить рекомендацию
Пожаловаться
Инженерия
34
0
Схема монтажа металлоконструкций шатра котла-утилизатора ТЕС
Используемые навыки:
Промышленное и гражданское строительство
Описание
Решение
Результат
Соавторы
Презентация проекта
Примеры реализации
Описание
Презентация проекта
Оценили проект:
0
×
Оценили проект
×
Авторизация
Для того чтобы оценивать проекты, вам нужно войти на сайт
Другие проекты
Все проекты
Чертеж тележки 80т
Барабан d1250
Чертеж тележки 400т для полярного крана Атомной станции
FREELANCE.RU
Toggle navigation
Нанять фрилансера
Заказчику
Найти по специализации
Найти по услугам
Провести конкурс
Разместить задание
Виртуальный HR
Другое
Найти работу
Фрилансеру
Найти задание
Присоединиться к команде
Участвовать в конкурсе
Предложить услугу
Другое
Возможности
Для заказчика
Для фрилансера
Вход
Разместить задание
▲