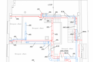
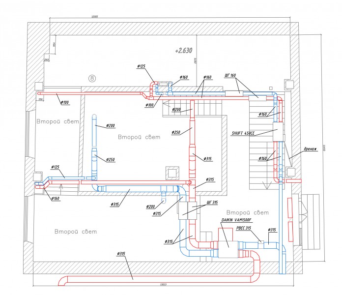
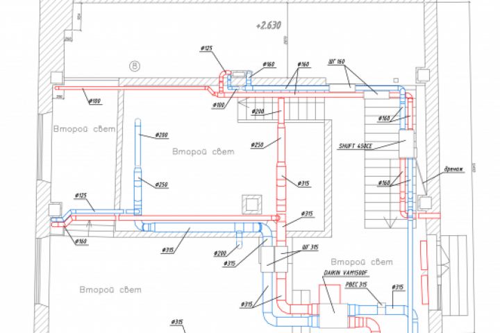
3D проект ВиК салона красоты в г. Москва
Для полной функциональности этого сайта необходимо включить JavaScript.
Москва
Марина Канальина
smartwood
Рейтинг: 47
не верифицирован
Всего отзывов:
0
Работ в портфолио:
7
Типовых услуг:
0
Работ на продажу:
0
Зарегистрирован:
16.02.2021
Была на сайте:
2021-12-24 в 15:41
inbox
Предложить работу
Добавить в избранное
Добавить рекомендацию
Пожаловаться
Инженерия
31
0
3D проект ВиК салона красоты в г. Москва
Используемые навыки:
Теплоснабжение/Отопление/Вентиляция
Описание
Решение
Результат
Соавторы
Презентация проекта
Примеры реализации
Описание
Презентация проекта
Оценили проект:
0
×
Оценили проект
×
Авторизация
Для того чтобы оценивать проекты, вам нужно войти на сайт
Другие проекты
Все проекты
3D проект ВиК загородного дома
Проект ОВ загородного дома
3-D Проект ОВиК оздоровительно-физкультурного комплекса
FREELANCE.RU
Toggle navigation
Нанять фрилансера
Заказчику
Каталог фрилансеров
Каталог PRO
Каталог студий
Каталог услуг
Каталог работ
Виртуальный HR
Умный поиск
Провести конкурс
Разместить задание
Найти работу
Найти задание
Присоединиться к команде
Участвовать в конкурсе
Предложить услугу
Вход
Разместить задание
▲