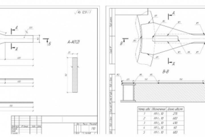
Детали промоборудования
Для полной функциональности этого сайта необходимо включить JavaScript.
Москва
49 лет
На сайте с: 06.08.2021
Via est vita
Dmitry Vasiljev
dmitryvasiljev
Рейтинг: 88
не верифицирован
Всего отзывов:
2
0
Выполнил заданий:
4
Работ в портфолио:
8
Типовых услуг:
0
Работ на продажу:
0
Был на сайте:
2022-03-26 в 16:17
inbox
telegram
dmitryvasiljev@yahoo.com
masterr.ucoz.net
Предложить работу
Добавить в избранное
Добавить рекомендацию
Пожаловаться
Инженерия
19
0
Детали промоборудования
Описание
Решение
Результат
Соавторы
Презентация проекта
Примеры реализации
Описание
Презентация проекта
Оценили проект:
0
×
Оценили проект
×
Авторизация
Для того чтобы оценивать проекты, вам нужно войти на сайт
Другие проекты
Все проекты
Детали промоборудования
Проектирование металлоконструкций
Проект ЭОМ одноэтажного коттеджа
FREELANCE.RU
Toggle navigation
Нанять фрилансера
Заказчику
Найти по специализации
Найти по услугам
Провести конкурс
Разместить задание
Собрать команду
Другое
Найти работу
Фрилансеру
Найти задание
Присоединиться к команде
Участвовать в конкурсе
Другое
Возможности
Для заказчика
Для фрилансера
Вход
Разместить задание
▲