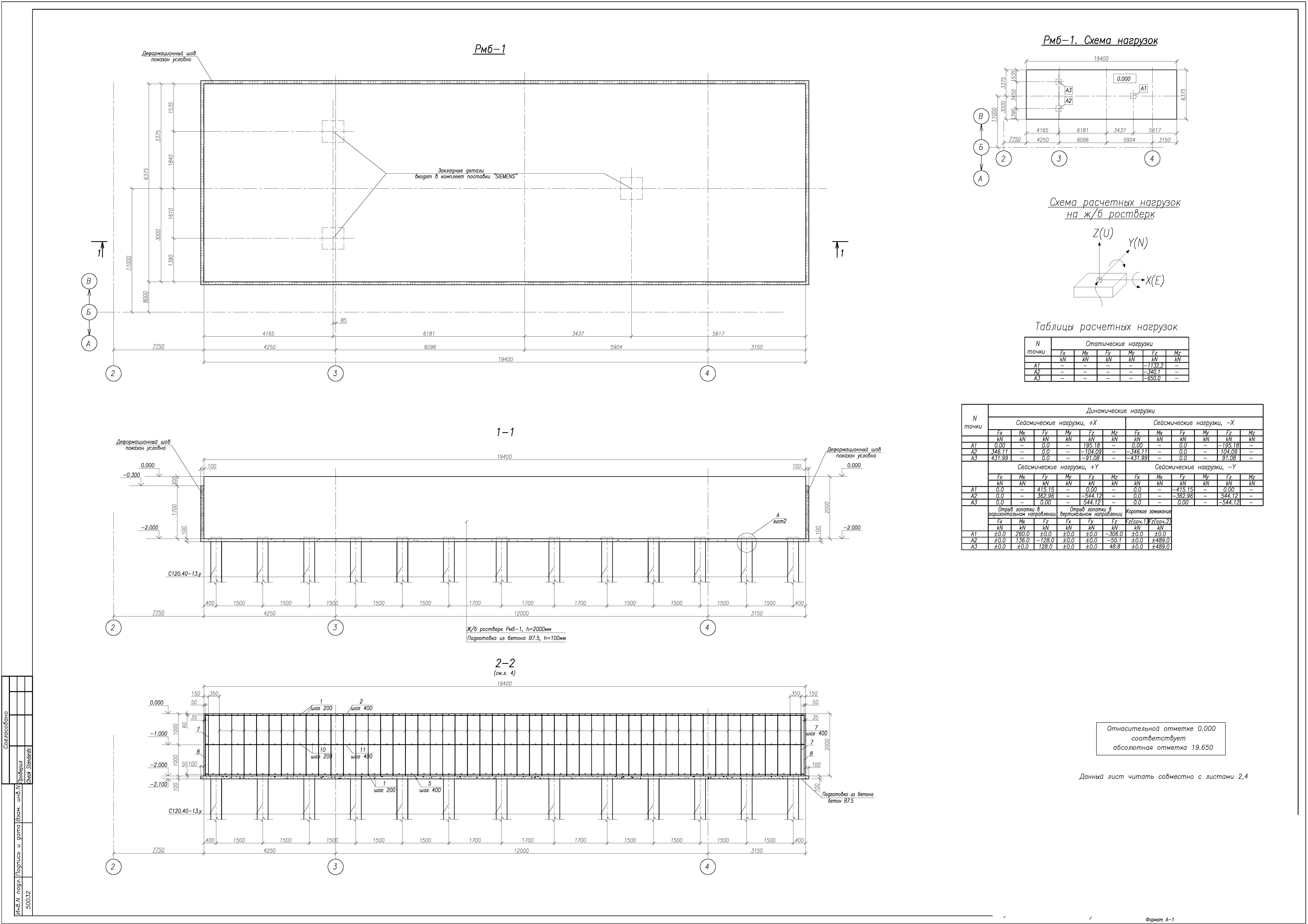
Проектирование фундаментов под турбины
Для полной функциональности этого сайта необходимо включить JavaScript.
Москва
45 лет
На сайте с: 09.12.2018
Вероника Меламуд
forvikki
Рейтинг: 80
не верифицирован
Всего отзывов:
0
Работ в портфолио:
10
Типовых услуг:
0
Работ на продажу:
0
Была на сайте:
2022-04-15 в 10:20
inbox
Предложить работу
Добавить в избранное
Добавить рекомендацию
Пожаловаться
Инженерия
34
0
Проектирование фундаментов под турбины
Используемые навыки:
Промышленное и гражданское строительство
Описание
Решение
Результат
Соавторы
Презентация проекта
Примеры реализации
Описание
Презентация проекта
Оценили проект:
0
×
Оценили проект
×
Авторизация
Для того чтобы оценивать проекты, вам нужно войти на сайт
Другие проекты
Все проекты
ТЭС Полярная Административно-бытовой корпус. Фундаменты
Проектирование фундаментов под турбины
Смета "Склад химпродукции на крайнем севере
FREELANCE.RU
Toggle navigation
Нанять фрилансера
Заказчику
Найти по специализации
Найти по услугам
Провести конкурс
Разместить задание
Виртуальный HR
Другое
Найти работу
Фрилансеру
Найти задание
Присоединиться к команде
Участвовать в конкурсе
Предложить услугу
Другое
Возможности
Для заказчика
Для фрилансера
Вход
Разместить задание
▲