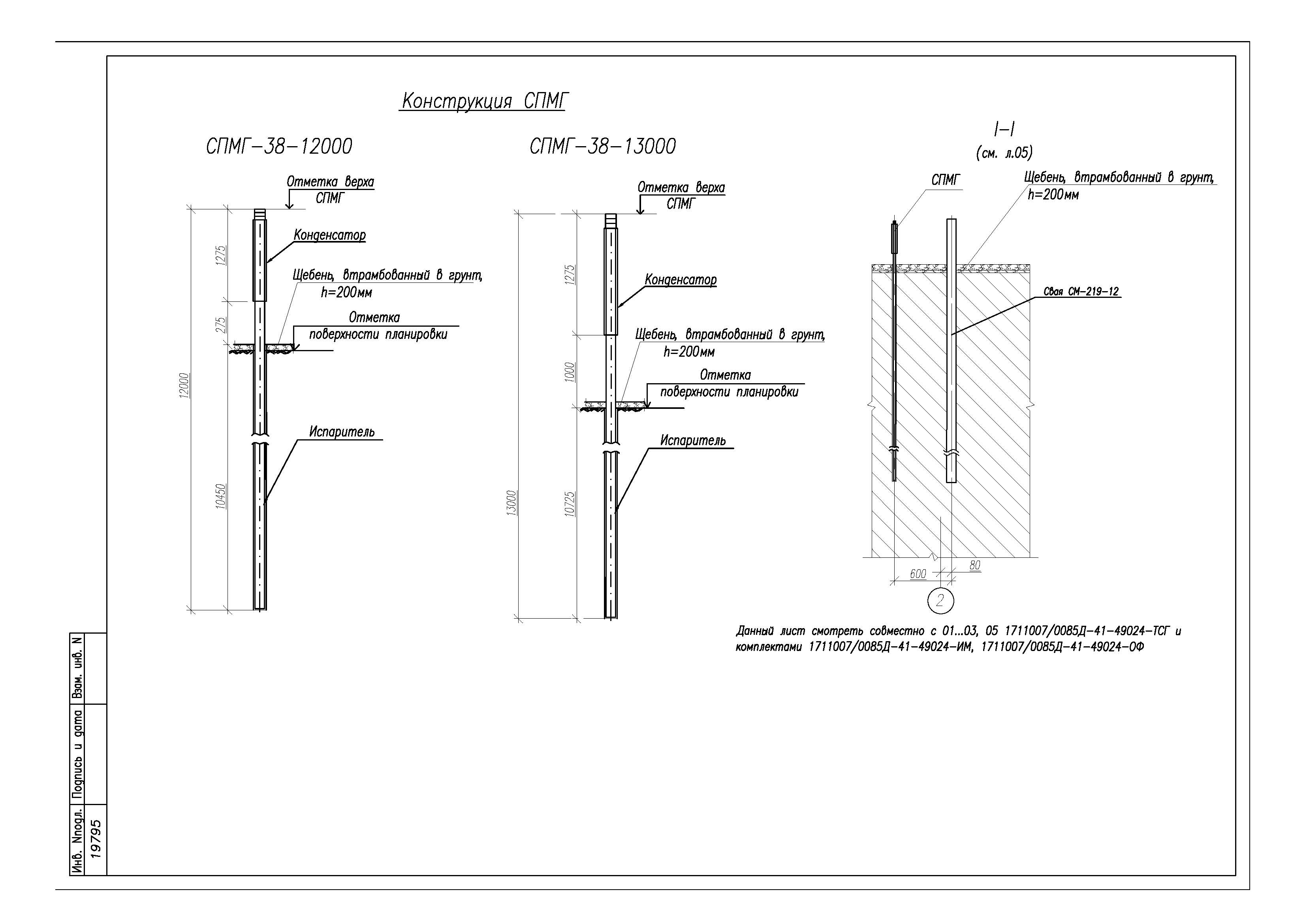
термостабилизация мерзлых грунтов при эксплуатации зданий
Для полной функциональности этого сайта необходимо включить JavaScript.
Москва
Вероника Меламуд
forvikki
Рейтинг: 80
не верифицирован
Всего отзывов:
0
Работ в портфолио:
10
Типовых услуг:
0
Работ на продажу:
0
Возраст:
46 лет
Зарегистрирован:
09.12.2018
Была на сайте:
2022-04-15 в 10:20
inbox
Предложить работу
Добавить в избранное
Добавить рекомендацию
Пожаловаться
Инженерия
48
0
термостабилизация мерзлых грунтов при эксплуатации зданий
Используемые навыки:
Проектирование объектов
Описание
Решение
Результат
Соавторы
Презентация проекта
Примеры реализации
Описание
Презентация проекта
Оценили проект:
0
×
Оценили проект
×
Авторизация
Для того чтобы оценивать проекты, вам нужно войти на сайт
Другие проекты
Все проекты
ТЭС Полярная Административно-бытовой корпус. Фундаменты
Бомбоубежище. Израиль
Ограждение котлована
FREELANCE.RU
Toggle navigation
Нанять фрилансера
Заказчику
Найти по специализации
Найти по услугам
Провести конкурс
Разместить задание
Виртуальный HR
Найти студию
Другое
Найти работу
Фрилансеру
Найти задание
Присоединиться к команде
Участвовать в конкурсе
Предложить услугу
Другое
Возможности
Для заказчика
Для фрилансера
Вход
Разместить задание
▲