Рейтинг: 63
не верифицирован
Всего отзывов: 0
  • Работ в портфолио: 3
  • Типовых услуг: 0
  • Работ на продажу: 0
Был на сайте:

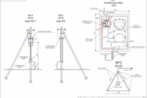
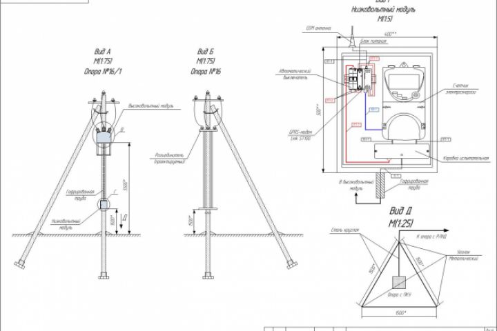
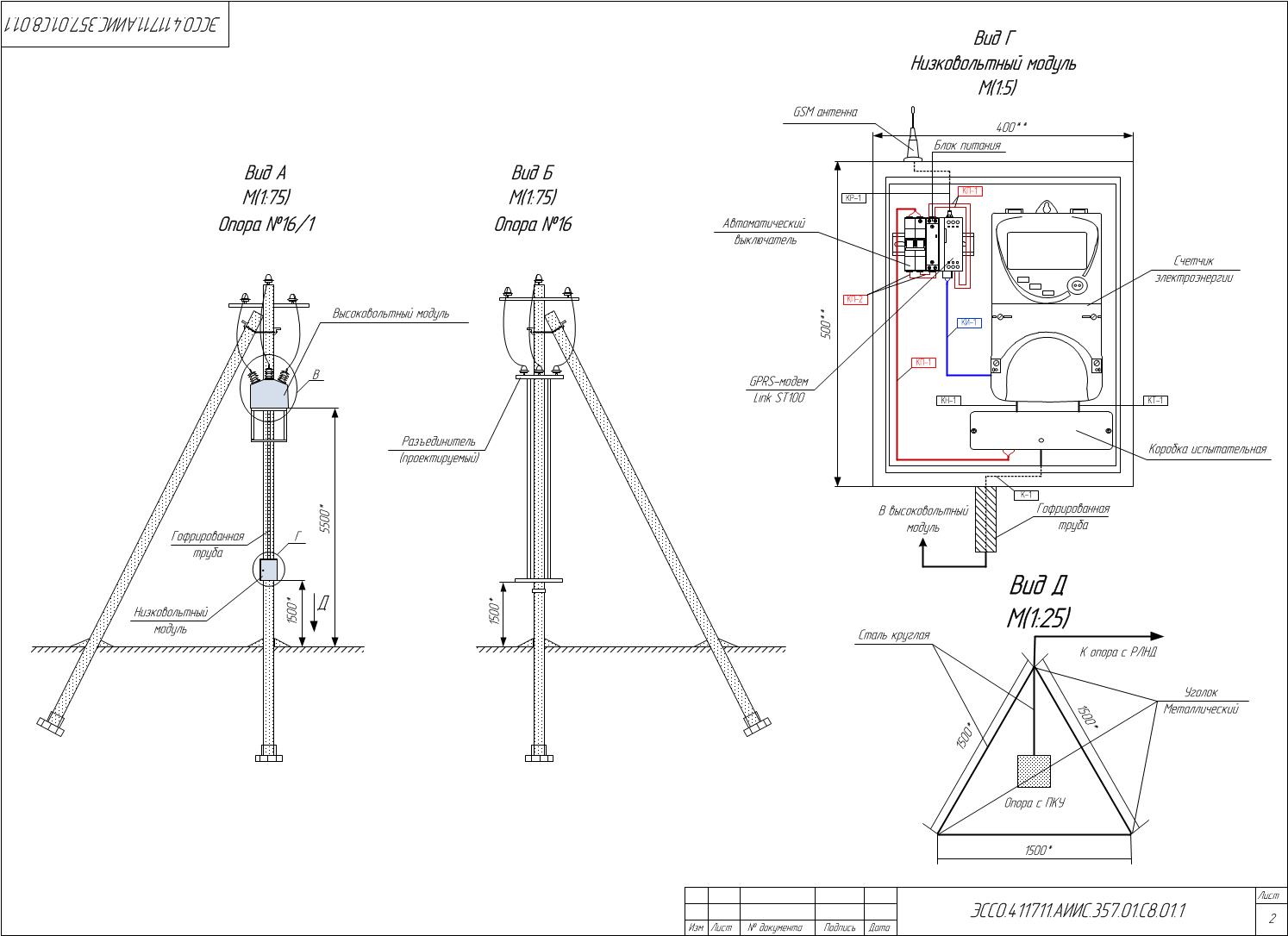
ТРП на установку пункта коммерческого учета МО

Используемые навыки:

Описание

ТРП на установку пункта коммерческого учета в Московской области

Ссылки на примеры реализации

 cloud.mail.ru/public/LjPQ/tjcqyzu3V

Презентация проекта

pic3735050.jpg

Оценили проект:

0