Рейтинг: 63
не верифицирован
Всего отзывов: 0
  • Работ в портфолио: 3
  • Типовых услуг: 0
  • Работ на продажу: 0
Был на сайте:

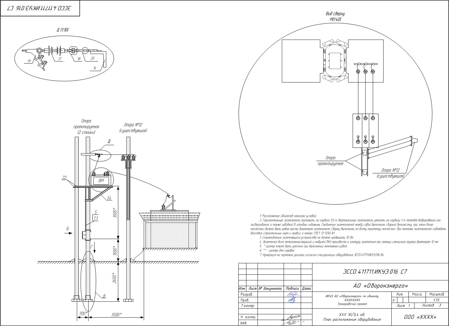
ТРП на установку пункта коммерческого учета в Ярославской обл.

Используемые навыки:

Описание

ТРП на установку пункта коммерческого учета в Ярославской области

Ссылки на примеры реализации

 cloud.mail.ru/public/31Cb/4rwm7Muj7

Презентация проекта

pic3735051.jpg

Оценили проект:

0