Рейтинг: 90
не верифицирован
Всего отзывов: 0
  • Работ в портфолио: 20
  • Типовых услуг: 0
  • Работ на продажу: 0
  • Возраст: 42 года
  • Зарегистрирован: 04.11.2014
Был на сайте:

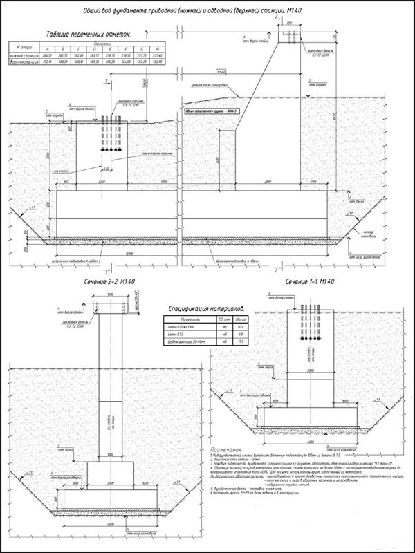
Расчет фундаментов канатной дороги в г. Южно-Сахалинск

Используемые навыки:

Описание

Расчет для прохождения экспертизы
Пассажирская подвесная канатная дорога с отцепляющимися четырехместными креслами, длинной L=900 м и L=1600м.
Проектирование:2014
Строительство: 2015

Расчет фундаментов произведен для приводной (нижней) и обводной (верхней) станции.
В расчете участвуют нагрузки: постоянная, снеговая, гололедная, ветровая, технологическая, сейсмическая (8баллов).

Выполнен подбор армирования, расчет по несущей способности и устойчивости.

Презентация проекта

pic2510454.jpg
2_Kanat_picture2.jpg
3_Kanat_picture3.jpg
4_Kanat_konstr1.jpg
5_Kanat_konstr2.jpg
6_Kanat_calc1.jpg
7_Kanat_calc2.jpg
8_Kanat_calc3.jpg
9_Kanat_calc4.jpg

Оценили проект:

0