Рейтинг: 90
не верифицирован
Всего отзывов: 0
  • Работ в портфолио: 20
  • Типовых услуг: 0
  • Работ на продажу: 0
  • Возраст: 42 года
  • Зарегистрирован: 04.11.2014
Был на сайте:

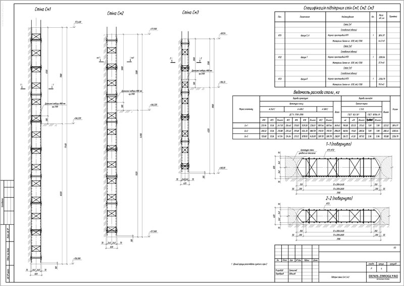
Подпорная "стена в грунте" в г.Киеве

Используемые навыки:

Описание

Конструктивные решения. Соломенский район в г. Киеве
Протяженность конструкции 63,0 м
Высота подпора грунта в наивысшей точке 8.6 м
Глубина заделки в грунт 10,3 м
Толщина - 800, 600 мм.

В основании стены сложные лесовые грунты. Цель работы: закрепить оползнеопасный склон.

Проектирование: 2015
Строительство: 2015

Презентация проекта

pic2510410.jpg
2_PS_konstr2.jpg
3_PS_konstr3.jpg
4_PS_konstr4.jpg
5_PS_konstr5.jpg
6_PS_calc1.jpg
7_PS_calc2.jpg
8_PS_photo1.jpg
9_PS_photo2.jpg
10_PS_photo3.jpg
11_PS_photo4.jpg
12_PS_photo5.jpg

Оценили проект:

0