Рейтинг: 90
не верифицирован
Всего отзывов: 0
  • Работ в портфолио: 20
  • Типовых услуг: 0
  • Работ на продажу: 0
  • Возраст: 42 года
  • Зарегистрирован: 04.11.2014
Был на сайте:

Реконструкция в г. Москва

Описание

Перепланировка и объединение двух квартир (друг над другом) посредством лестницы в старинном доме центра Москвы.
Конструктивные решения
Общая площадь:200 м2
Дизайнер: Пискун Алеся
Конструктор: Зимогляд Денис

Проектирование: 2014
Строительство: 2015 Окончено

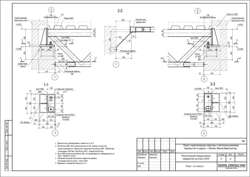
Разработка конструкций межэтажного перекрытия. Длинна пролета 12м. Высота ферм усиления 570 мм. Покрытием пола является легкая сендвич-конструкция по профилированному настилу.

Презентация проекта

pic2509482.jpg
2_M_picture2.jpg
3_M_picture3.jpg
4_M_kmd.jpg
5_M_konstr1.jpg
6_M_konstr2.jpg
7_M_konstr3.jpg
8_M_konstr4.jpg
9_M_konstr5.jpg
10_M_photo1.jpg
11_M_photo2.jpg
12_M_photo3.jpg
13_M_photo4.jpg

Оценили проект:

0