3D, Дизайн, Визуализация, Интерьер, Экстерьер

Константин Разговоров ninesonel

Top 10
Рейтинг: 11 970
Паспорт верифицирован
Всего отзывов: 100 1
Профессионализм: 9 Коммуникация: 10
Выполнил заданий: 124
  • Надежность: Использовал: Работал по Безопасной сделке
  • Активность:
  • Работ в портфолио: 195
  • Типовых услуг: 30
  • Работ на продажу: 2
  • Возраст: 23 года
  • Стаж работы: 4 года
  • Зарегистрирован: 23.08.2021
  • Образование: Бакалавриат
  • Юридический статус:Самозанятый
  • Стоимость услуг (руб): 1 000 за час 100 000 за месяц
Был на сайте:

Описание

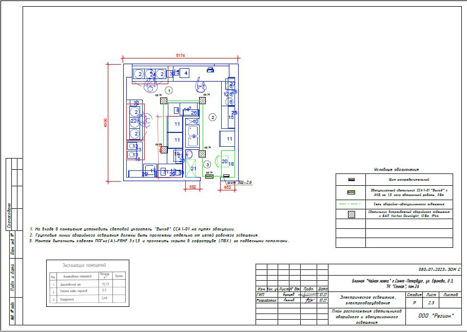
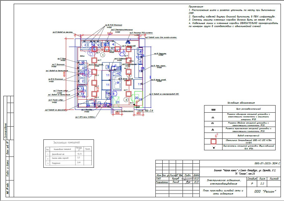
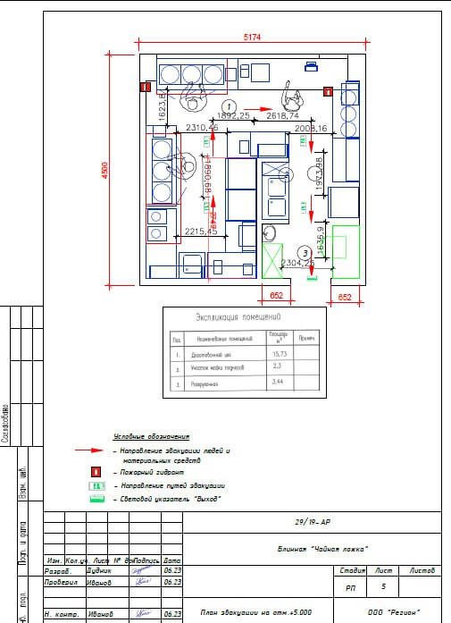
Распишу о работе, которая связана с разработкой Системы Электроснабжения и Архитектурного строительного решения для Блинной в Санкт-Петербурге

Решение

Из уточняющей информации и данных для начала работы имелось следующее:
1) Схемы помещений, нарисованные от руки
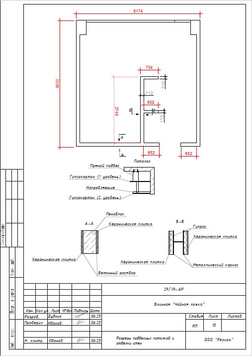
2) Размеры от фальш потолка до перекладины - 1285~
Размер от фальш потолка до основного потолка - 1700~
Размер от Пола до фальш потолка - 2850~
Размер от Пола до основного потолка - 4550~
3) Зонты надо проектировать согласно размещению блинниц на тх
4) Расположение пожарных распрыскивателей и пожарных датчиков
5) Спецификация
6) Тех. условия

Результат

Требовалось создать АР и ЭЛ согласно ГОСТу.
Нужно для передачи дальнейшей информации строительной компании

Ссылки на примеры реализации

 vk.com/wall-203363800_27

Презентация проекта

pic4499129.jpg
1.jpg
2.jpg
3.jpg
4.jpg
5.jpg
6.jpg
7.jpg
8.jpg
9.jpg
10.jpg

Оценили проект:

0