3D, Дизайн, Визуализация, Интерьер, Экстерьер

Константин Разговоров ninesonel

Top 10
Рейтинг: 12 704
Паспорт верифицирован
Всего отзывов: 100 1
Профессионализм: 9 Коммуникация: 10
Выполнил заданий: 124
  • Надежность: Использовал: Работал по Безопасной сделке
  • Активность:
  • Работ в портфолио: 195
  • Типовых услуг: 30
  • Работ на продажу: 2
  • Возраст: 23 года
  • Стаж работы: 4 года
  • Зарегистрирован: 23.08.2021
  • Образование: Бакалавриат
  • Юридический статус:Самозанятый
  • Стоимость услуг (руб): 1 000 за час 100 000 за месяц
Был на сайте:

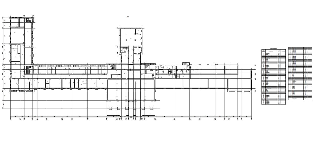
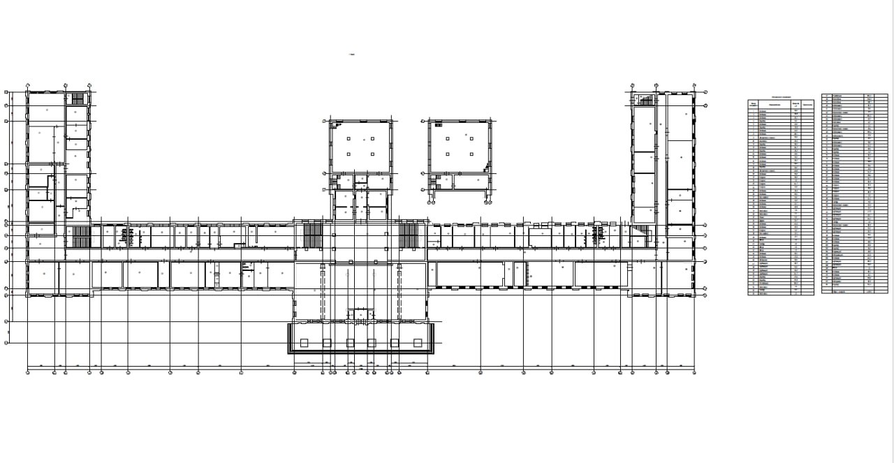
Отрисовать планы здания (18 тыс. кв.м.) в Автокаде

Описание

Требовалось отрисовать планы здания (18 тыс. кв.м.) в Автокаде (формат DWG), масштаб 1:1, размерная сетка 1мм.

Решение

ТЗ выглядело следующим образом:

1) Добавить оси по ГОСТ 21.101-2020.
2) Нумерацию помещений указать в соответствии с тех.паспортом (в соответствии с ГОСТ 21.101-2020).
3) Добавить экспликацию помещений, в которой указать номер помещения, наименование, площадь и общая площадь этажа.
4) Размеры на плане только в осевых линиях, с использованием специализированного инструмента Автокад. На самом плане размеров быть не должно.
5) Шрифт использовать isocpeur (курсив), допустимая высота 180, 250, 350.
* Допускается несостыковка размеров не более 3%.
6) Заливку для стен не использовать.
7) Использовать следующие слои:
- План здания
- Оси
- Размеры
- Нумерация помещений и экспликация.

Результат

Исходники представляли из себя следующее:

-Планы (2 и 4 эт.)
-Планы (подв., 1эт., цок.)
-Экспликация помещений

Ссылки на примеры реализации

 vk.com/wall-203363800_30

Презентация проекта

pic4499130.jpg
12.jpg
13.jpg
14.jpg
15.jpg
16.jpg
11.jpg

Оценили проект:

0