3D, Дизайн, Визуализация, Интерьер, Экстерьер

Константин Разговоров ninesonel

Top 10
Рейтинг: 12 537
Паспорт верифицирован
Всего отзывов: 100 1
Профессионализм: 9 Коммуникация: 10
Выполнил заданий: 124
  • Надежность: Использовал: Работал по Безопасной сделке
  • Активность:
  • Работ в портфолио: 195
  • Типовых услуг: 30
  • Работ на продажу: 2
  • Возраст: 23 года
  • Стаж работы: 4 года
  • Зарегистрирован: 23.08.2021
  • Образование: Бакалавриат
  • Юридический статус:Самозанятый
  • Стоимость услуг (руб): 1 000 за час 100 000 за месяц
Был на сайте:

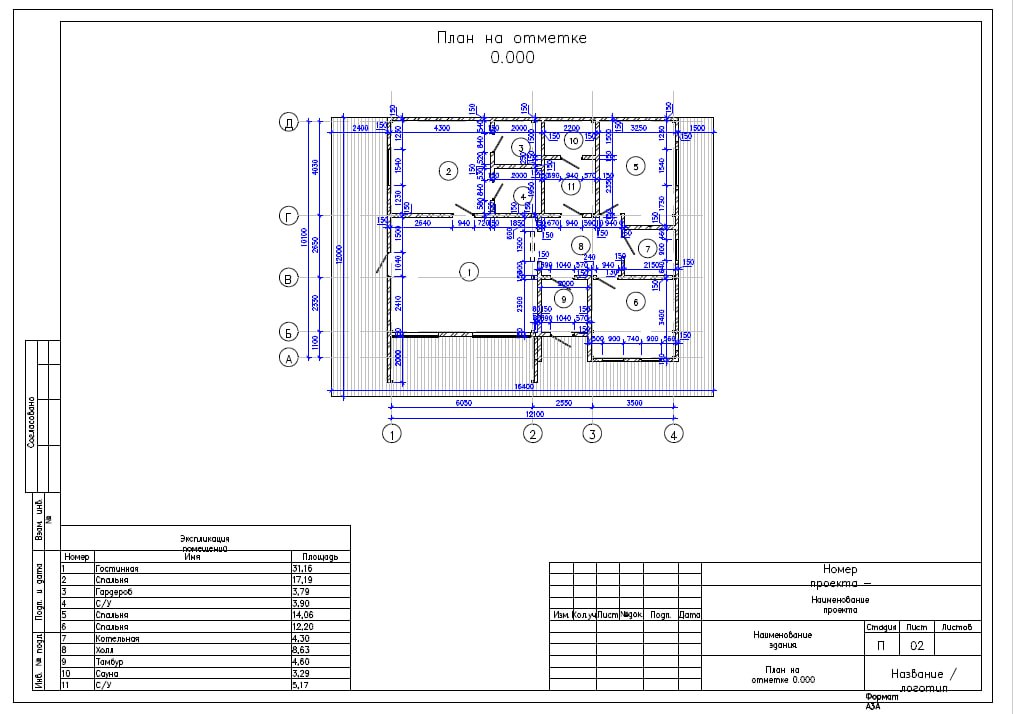
Архитектурное проектирование. Раздел АР. Архитектура

Описание

Заказ по “Архитектурное проектирование. Раздел АР. Архитектура

Необходимо сделать несколько листов с планом одноэтажного каркасного дома
Из исходников имелись: планировка помещений, визуализация.
Также человек рассказал о пожеланиях с размерами.

Нужно было сделать следующее:
1. План с размерами помещений
2. Высотный план

Решение

Из всего вышеперечисленного нужно было сделать работу. Она была сделана быстро, так как заказчик постоянно был на связи, и мы своевременно вносили правки

Результат

Дом одноэтажный – сделали так, как просил человек, поэтому он остался доволен полученной работой.
На данный момент происходит стройка дома.

Ссылки на примеры реализации

 vk.com/wall-203363800_40

Презентация проекта

pic4499146.jpg
1.jpg
2.jpg
3.jpg
4.jpg
5.jpg
6.jpg

Оценили проект:

0