3D, Дизайн, Визуализация, Интерьер, Экстерьер

Константин Разговоров ninesonel

Top 10
Рейтинг: 12 704
Паспорт верифицирован
Всего отзывов: 100 1
Профессионализм: 9 Коммуникация: 10
Выполнил заданий: 124
  • Надежность: Использовал: Работал по Безопасной сделке
  • Активность:
  • Работ в портфолио: 195
  • Типовых услуг: 30
  • Работ на продажу: 2
  • Возраст: 23 года
  • Стаж работы: 4 года
  • Зарегистрирован: 23.08.2021
  • Образование: Бакалавриат
  • Юридический статус:Самозанятый
  • Стоимость услуг (руб): 1 000 за час 100 000 за месяц
Был на сайте:

Описание

Требовалось выполнить рабочую документацию проекта ИЖС (Индивидуального Жилого Строения) ТК-2

В результате работы, заказчику требовались:
- Рабочие чертежи
- Визуализация экстерьера

Решение

По требованиям человека, мы сразу поняли, что ему нужно. И итоговый альбом с документацией у нас включает следующее:
- Общие данные
- План плиты
- План армирования фундаментной плиты
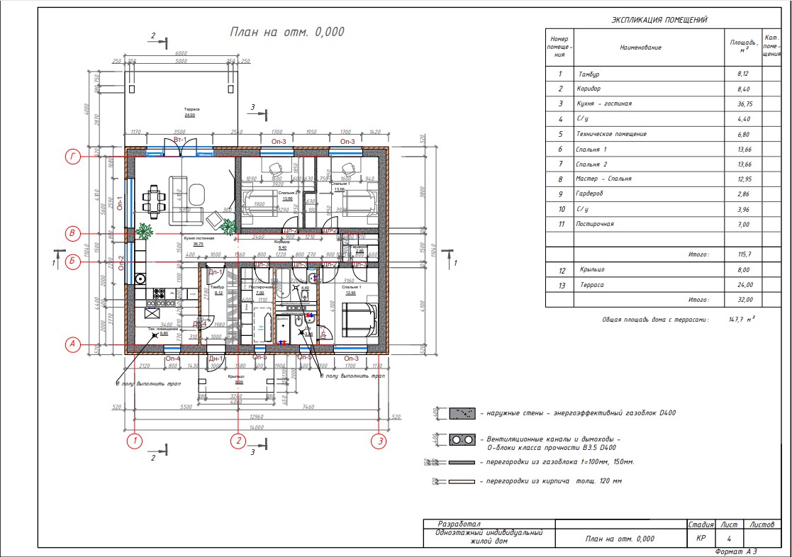
- План на отм. 0,000
- Кладочный план на отм. 0,000
- Ведомость перемычек. СПЕЦИФИКАЦИЯ ЭЛЕМЕНТОВ ПЕРЕМЫЧЕК
- Разрез 1-1
- Разрез 2-2
- Разрез 3-3. Общие указания по устройству кровли
- Фасад А -Г . Фасад Г -А .
- План кровли.
- Схемы заполнения оконных проемов. СПЕЦИФИКАЦИЯ ЭЛЕМЕНТОВ ЗАПОЛНЕНИЯ ПРОЕМОВ
- Схема расположения монолитного пояса Мп1 (опалубочный план)
- План перекрытия. Мауэрлат, лежень, балки перекрытия. Спецификация к деревянному перекрытию.
- План расположения стропильной системы
- ВЕДОМОСТЬ НАРУЖНОЙ ОТДЕЛКИ
- Схема Генерального Плана
- Визуализация

Результат

Проект требовал много времени на разработку. Мы удачно с ним справились. С некоторыми страницами можете ознакомиться в приложенных файлах, а также с визуализацией самого дома. Также много информации получили во время разработки, согласовывали каждое нововведение заказчика. Предлагали дизайнерское решение по задумкам человека.

Ссылки на примеры реализации

 vk.com/wall-203363800_87

Презентация проекта

pic4539486.jpg

Оценили проект:

0