Рейтинг: 22
не верифицирован
Всего отзывов: 0
  • Работ в портфолио: 2
  • Типовых услуг: 0
  • Работ на продажу: 0
Был на сайте:

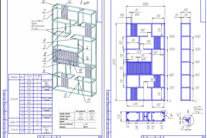
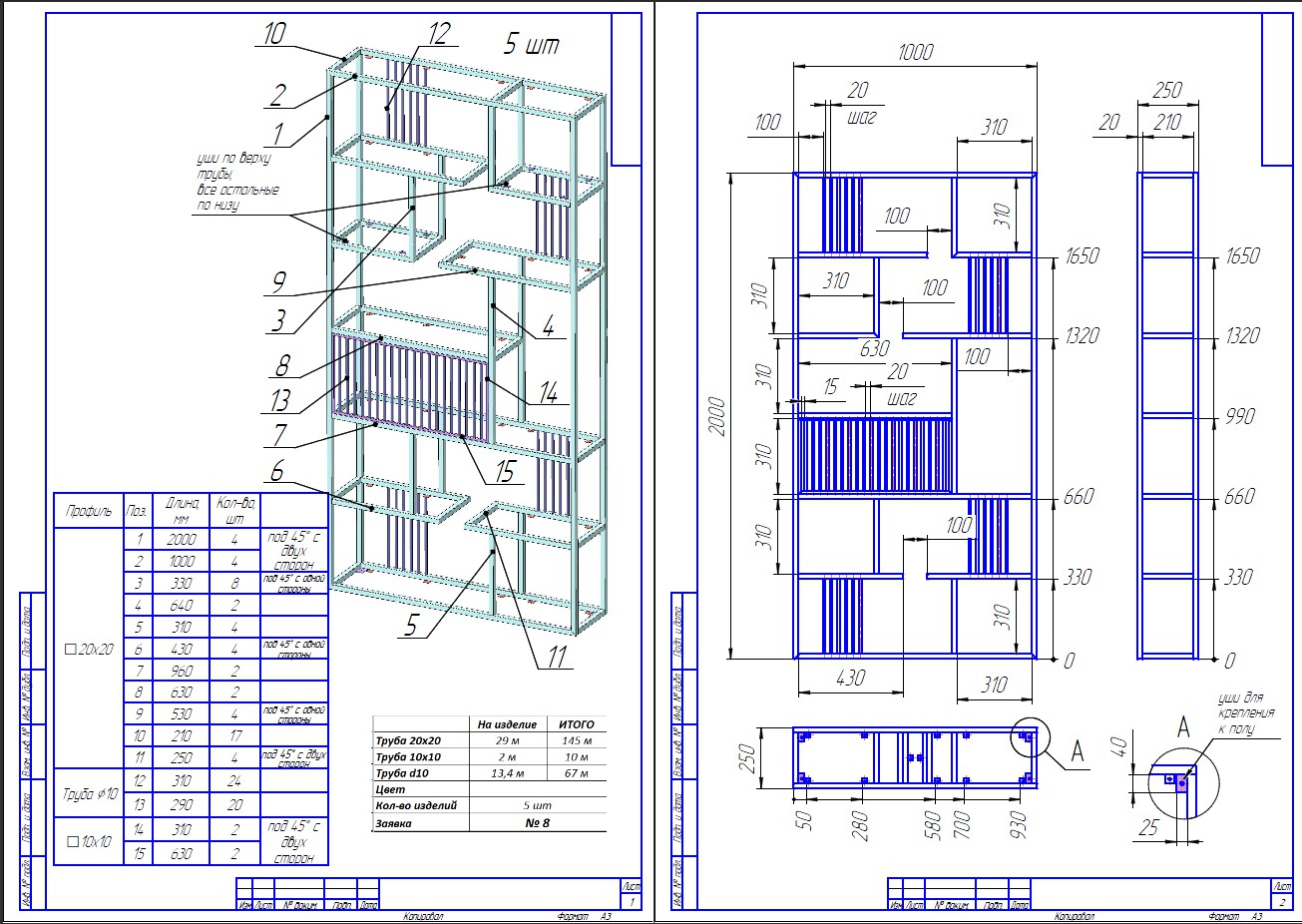
Стеллаж в стиле LOFT.

Используемые навыки:

Описание

Чертеж стеллажа (металлическая часть). Чертеж для рабочего, с указанием длин профилей и общим метражом материала.

Презентация проекта

pic4298189.jpg

Оценили проект:

0