Рейтинг: 79
не верифицирован
Всего отзывов: 0
  • Работ в портфолио: 9
  • Типовых услуг: 2
  • Работ на продажу: 0
  • Возраст: 49 лет
  • Стаж работы: 5 лет
  • Зарегистрирован: 17.05.2022
  • Образование: Бакалавриат
  • Юридический статус:Самозанятый
  • Стоимость услуг (руб): 625 за час 60 000 за месяц
Была на сайте:

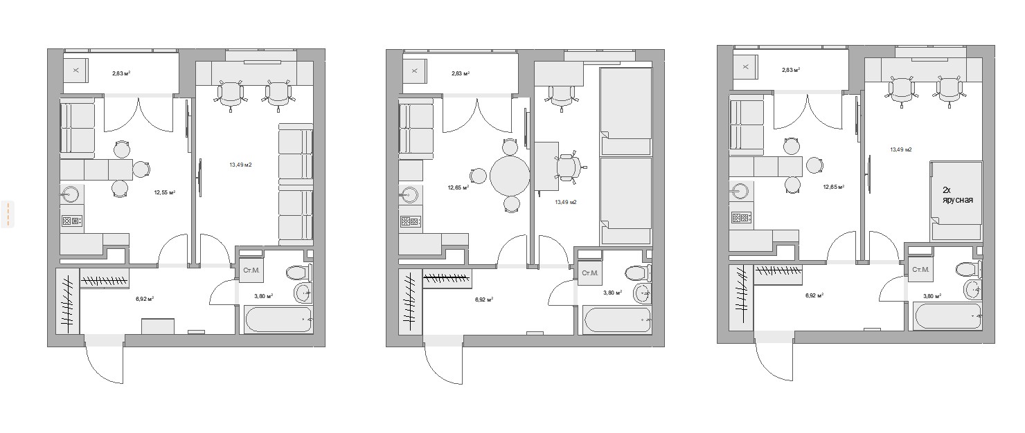
Планировочное решение 1 ком квартиры

Описание

Пример работы с заказчиком. На фото три варианта планировки квартиры 40 кв.м.. Семья их трех человек: мама, сын 16 лет, сын 3 года. На кухне запланировано спальное место для мамы, а комната для детей. Задание выполнено по ТЗ.

Ссылки на примеры реализации

 vk.com/public212258472

Презентация проекта

pic4288294.jpg

Оценили проект:

0