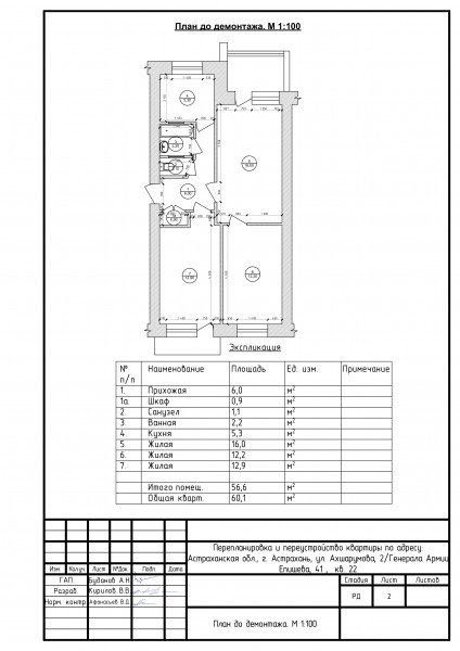
Перепланировка квартиры 2
Для полной функциональности этого сайта необходимо включить JavaScript.
Астрахань
На сайте с: 05.08.2020
Владимир Кирилов
kirilov4815
Рейтинг: 87
не верифицирован
Всего отзывов:
0
Работ в портфолио:
27
Типовых услуг:
0
Работ на продажу:
0
Был на сайте:
2023-02-09 в 12:39
inbox
telegram
Вконтакте
Предложить работу
Добавить в избранное
Добавить рекомендацию
Пожаловаться
Дизайн пространства
14
0
Перепланировка квартиры 2
Используемые навыки:
Архитектурное проектирование
Описание
Решение
Результат
Соавторы
Презентация проекта
Примеры реализации
Описание
Презентация проекта
Оценили проект:
0
×
Оценили проект
×
Авторизация
Для того чтобы оценивать проекты, вам нужно войти на сайт
Другие проекты
Все проекты
Коровник
Объект под спальные номера в базе отдыха.
Индивидуальный жилой дом
FREELANCE.RU
Toggle navigation
Нанять фрилансера
Заказчику
Найти по специализации
Найти по услугам
Провести конкурс
Разместить задание
Виртуальный HR
Другое
Найти работу
Фрилансеру
Найти задание
Присоединиться к команде
Участвовать в конкурсе
Предложить услугу
Другое
Возможности
Для заказчика
Для фрилансера
Вход
Разместить задание
▲