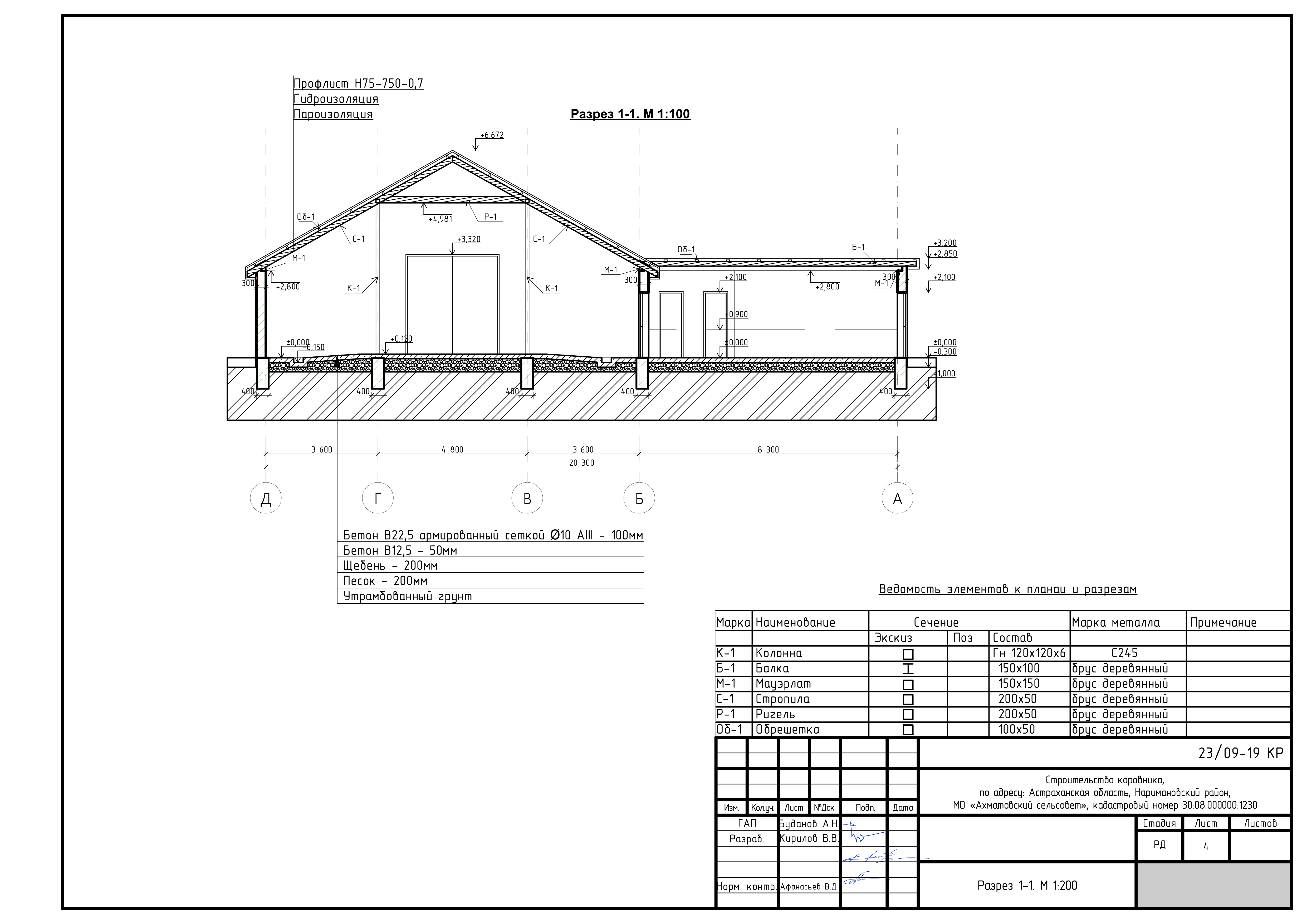
Коровник
Для полной функциональности этого сайта необходимо включить JavaScript.
Астрахань
На сайте с: 05.08.2020
Владимир Кирилов
kirilov4815
Рейтинг: 87
не верифицирован
Всего отзывов:
0
Работ в портфолио:
27
Типовых услуг:
0
Работ на продажу:
0
Был на сайте:
2023-02-09 в 12:39
inbox
telegram
Вконтакте
Предложить работу
Добавить в избранное
Добавить рекомендацию
Пожаловаться
Дизайн пространства
16
0
Коровник
Используемые навыки:
Архитектура зданий и сооружений
Описание
Решение
Результат
Соавторы
Презентация проекта
Примеры реализации
Описание
Презентация проекта
Оценили проект:
0
×
Оценили проект
×
Авторизация
Для того чтобы оценивать проекты, вам нужно войти на сайт
Другие проекты
Все проекты
Интерьер ванной комнаты 1
Перепланировка квартиры 2
Проект ИЖС для разрешения на строительство
FREELANCE.RU
Toggle navigation
Нанять фрилансера
Заказчику
Найти по специализации
Найти по услугам
Провести конкурс
Разместить задание
Виртуальный HR
Другое
Найти работу
Фрилансеру
Найти задание
Присоединиться к команде
Участвовать в конкурсе
Предложить услугу
Другое
Возможности
Для заказчика
Для фрилансера
Вход
Разместить задание
▲