Рейтинг: 54
не верифицирован
Всего отзывов: 0
  • Работ в портфолио: 4
  • Типовых услуг: 0
  • Работ на продажу: 0
Был на сайте:

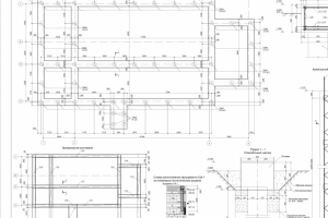
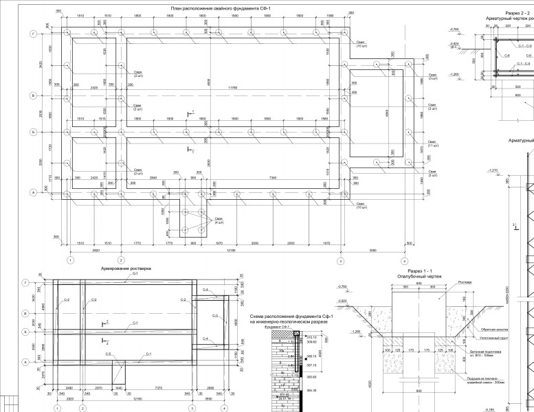
Устройство свайных фундаментов

Описание

Устройство свайных фундаментов под двухэтажное здание выполненное из пеноблоков.
Выполнение расчета конструкции с последующим конструированием

Презентация проекта

pic4028997.jpg

Оценили проект:

0