Рейтинг: 54
не верифицирован
Всего отзывов: 0
  • Работ в портфолио: 4
  • Типовых услуг: 0
  • Работ на продажу: 0
Был на сайте:

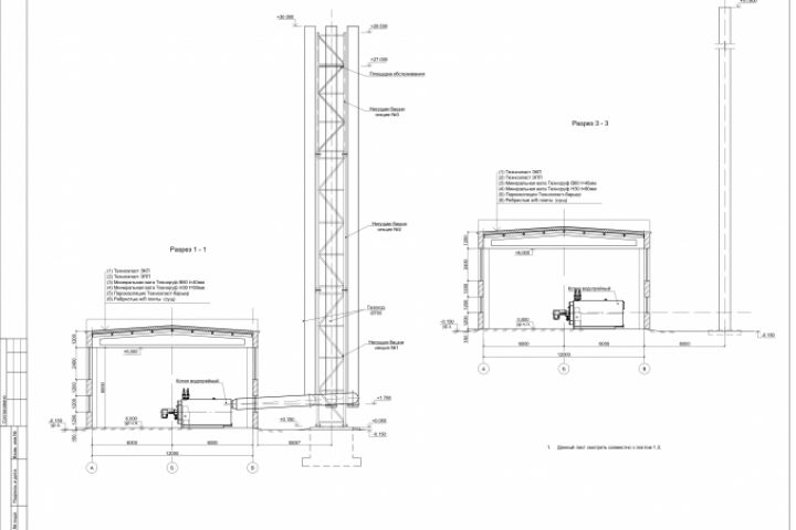
Реконструкция котельной с заменой дымовой трубы

Описание

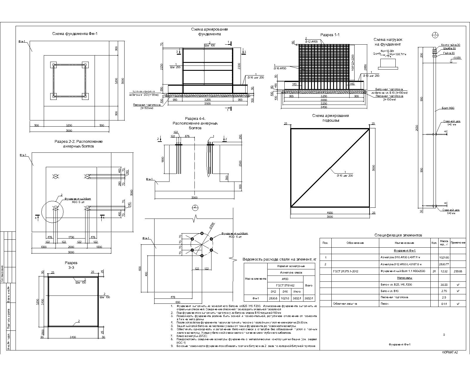
Реконструкция котельной, включающая замену дымовой металлической трубы на трубу башенного типа с газоходами из сэндвич-панелей. Устройство фундаментов под башню.
Проведение косметических работ в здание котельной, замена окон, устройство дополнительных легкосбрасываемых конструкций. Усиление конструкций здания по результатам технического обследования. Замена кровли здания. Проведение работ по монтажу в три этапа.

Презентация проекта

pic4029001.jpg
20190521 1500 7900303-19-КР-5-Фм-1.jpg

Оценили проект:

0