Проектирование каркасных домов

Георгий Трофимов art-cottage.ru

Рейтинг: 174
не верифицирован
Всего отзывов: 7 0
Опубликовал заданий: 118
  • Активность:
  • Работ в портфолио: 49
  • Типовых услуг: 0
  • Работ на продажу: 0
  • Возраст: 35 лет
  • Зарегистрирован: 16.11.2013
Был на сайте:

Архитектурно-строительные чертежи

Описание

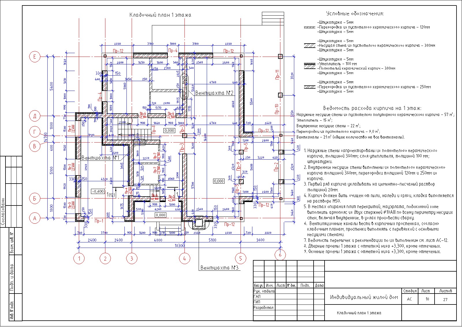
Кладочный план первого этажа

Ссылки на примеры реализации

 art-cottage.ru

Презентация проекта

pic1682713.jpg

Оценили проект:

0