Работа 2947501
Для полной функциональности этого сайта необходимо включить JavaScript.
Челябинск
34 года
На сайте с: 16.11.2013
Проектирование каркасных домов
Георгий Трофимов
art-cottage.ru
Рейтинг: 174
не верифицирован
Всего отзывов:
7
0
Опубликовал заданий:
118
Нейросаммари
Активность:
Работ в портфолио:
49
Типовых услуг:
0
Работ на продажу:
0
Был на сайте:
2025-12-04 в 08:08
Предложить работу
Добавить в избранное
Добавить рекомендацию
Пожаловаться
Инженерия
26
0
Работа 2947501
Используемые навыки:
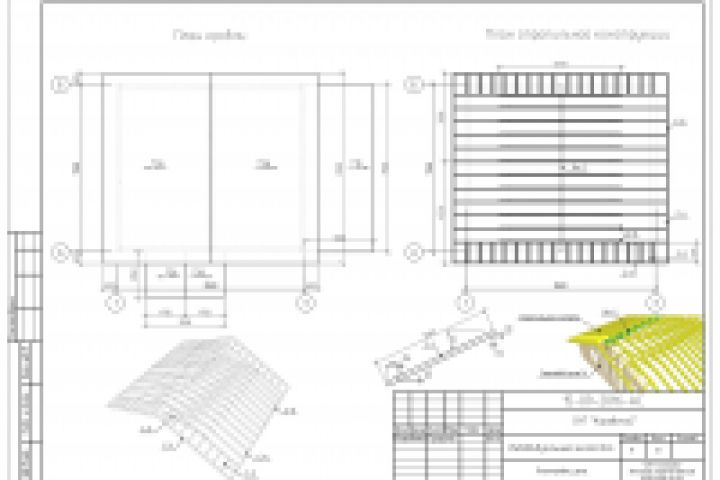
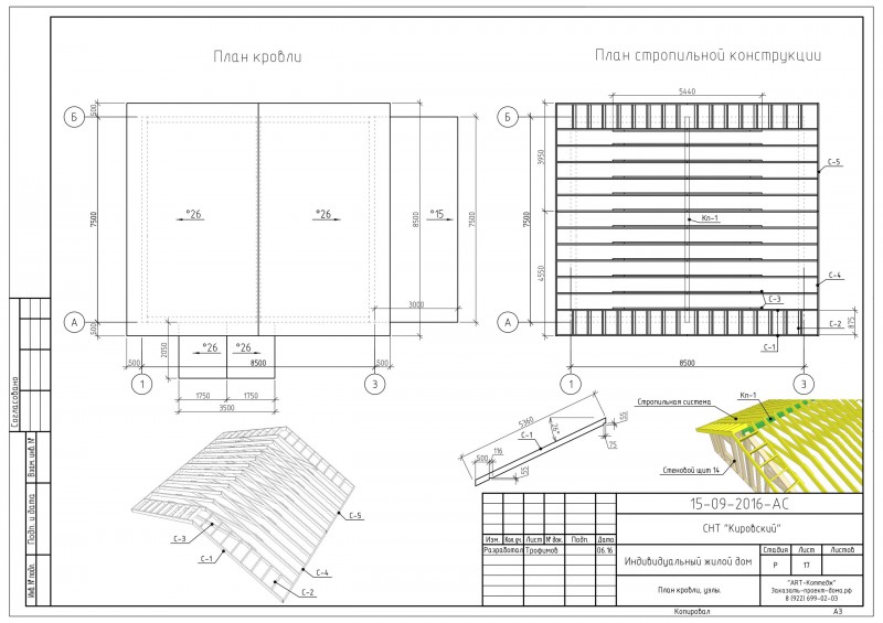
Строительные конструкции
Описание
Решение
Результат
Соавторы
Презентация проекта
Примеры реализации
Описание
Презентация проекта
Оценили проект:
0
×
Оценили проект
×
Авторизация
Для того чтобы оценивать проекты, вам нужно войти на сайт
Другие проекты
Все проекты
Работа 2947493
Работа 2249776
Работа 2947489
FREELANCE.RU
Toggle navigation
Нанять фрилансера
Заказчику
Найти по специализации
Найти по услугам
Провести конкурс
Разместить задание
Другое
Найти работу
Фрилансеру
Найти задание
Присоединиться к команде
Участвовать в конкурсе
Другое
Возможности
Для заказчика
Для фрилансера
Вход
Разместить задание
▲