Дорогу осилит идущий

Александр Кузнецов Togor

Рейтинг: 54
не верифицирован
Всего отзывов: 0
  • Работ в портфолио: 4
  • Типовых услуг: 0
  • Работ на продажу: 0
Был на сайте:

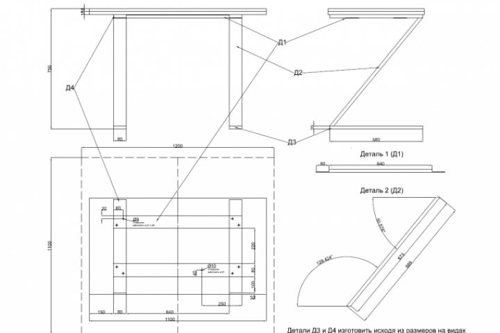
Чертеж для изготовления стола в стиле лофт

Используемые навыки:

Описание

Разработан четеж для изготовления стола в стиле лофт

Презентация проекта

pic3722422.jpg
photo_2019-08-13_20-44-49.jpg

Оценили проект:

0