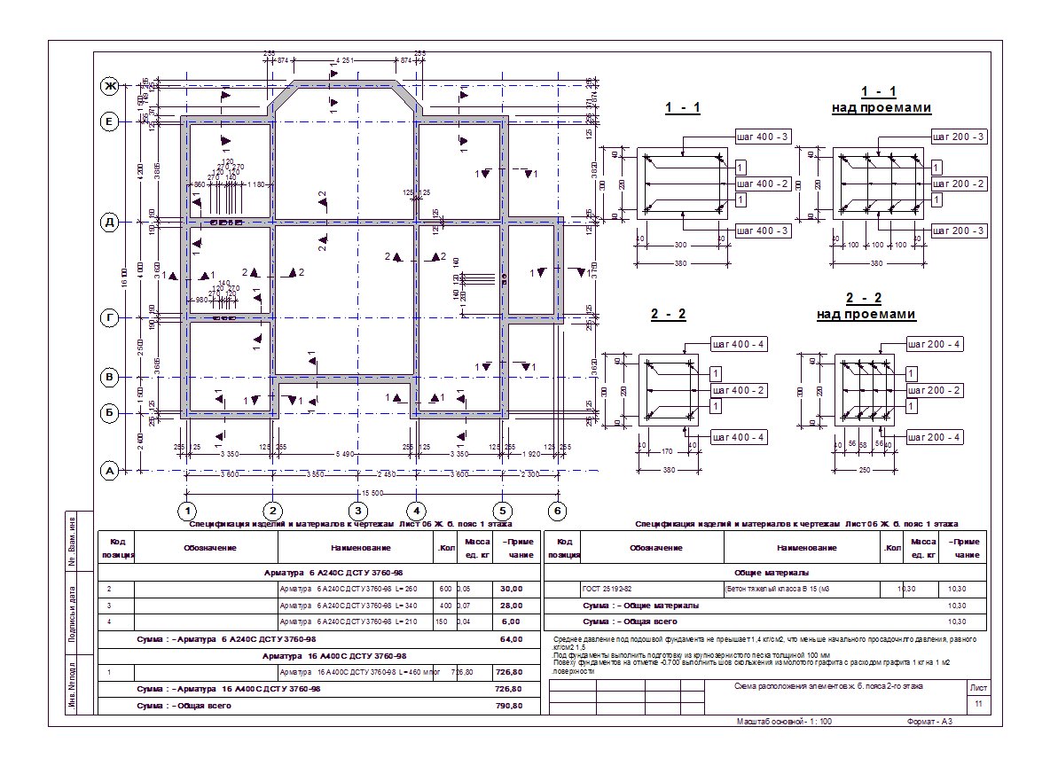
Железобетонный пояс 2 этажа
Для полной функциональности этого сайта необходимо включить JavaScript.
Киев
На сайте с: 25.09.2009
Иван Хоруженко
naviv
Рейтинг: 107
не верифицирован
Всего отзывов:
0
Работ в портфолио:
47
Типовых услуг:
0
Работ на продажу:
0
Был на сайте:
2023-12-28 в 20:57
inbox
archi-con@yandex.ru
Предложить работу
Добавить в избранное
Добавить рекомендацию
Пожаловаться
Дизайн пространства
11
0
Железобетонный пояс 2 этажа
Используемые навыки:
Архитектура зданий и сооружений
Описание
Решение
Результат
Соавторы
Презентация проекта
Примеры реализации
Описание
2 этажный жилой дом
Презентация проекта
Оценили проект:
0
×
Оценили проект
×
Авторизация
Для того чтобы оценивать проекты, вам нужно войти на сайт
Другие проекты
Все проекты
Церковь
Фундаменты АБК
План стропил
FREELANCE.RU
Toggle navigation
Нанять фрилансера
Заказчику
Найти по специализации
Найти по услугам
Провести конкурс
Разместить задание
Виртуальный HR
Другое
Найти работу
Фрилансеру
Найти задание
Присоединиться к команде
Участвовать в конкурсе
Другое
Возможности
Для заказчика
Для фрилансера
Вход
Разместить задание
▲