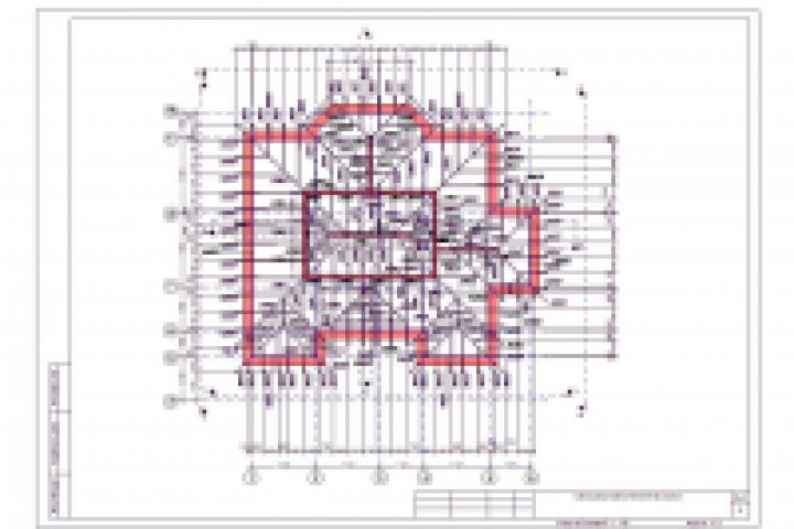
План стропил
Для полной функциональности этого сайта необходимо включить JavaScript.
Киев
На сайте с: 25.09.2009
Иван Хоруженко
naviv
Рейтинг: 107
не верифицирован
Всего отзывов:
0
Работ в портфолио:
47
Типовых услуг:
0
Работ на продажу:
0
Был на сайте:
2023-12-28 в 20:57
inbox
archi-con@yandex.ru
Предложить работу
Добавить в избранное
Добавить рекомендацию
Пожаловаться
Дизайн пространства
27
0
План стропил
Используемые навыки:
Архитектура зданий и сооружений
Описание
Решение
Результат
Соавторы
Презентация проекта
Примеры реализации
Описание
2 этажный жилой дом
Презентация проекта
Оценили проект:
0
×
Оценили проект
×
Авторизация
Для того чтобы оценивать проекты, вам нужно войти на сайт
Другие проекты
Все проекты
Кафе - вид 3
Вид 5
Аксонометрия на стропила
FREELANCE.RU
Toggle navigation
Нанять фрилансера
Заказчику
Найти по специализации
Найти по услугам
Провести конкурс
Разместить задание
Виртуальный HR
Другое
Найти работу
Фрилансеру
Найти задание
Присоединиться к команде
Участвовать в конкурсе
Другое
Возможности
Для заказчика
Для фрилансера
Вход
Разместить задание
▲