вся жизнь - проект, а люди в ней фасады

Екатерина Давыдова vipeka

Рейтинг: 208
не верифицирован
Всего отзывов: 2 0
Выполнила заданий: 3
  • Работ в портфолио: 29
  • Типовых услуг: 2
  • Работ на продажу: 0
Была на сайте:

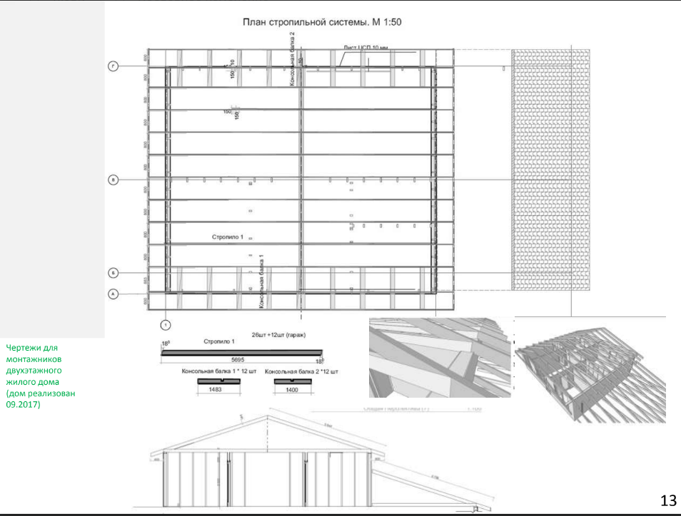
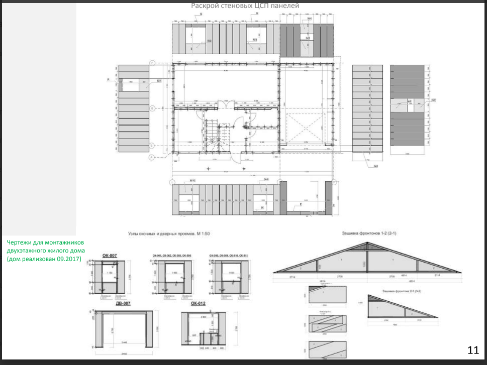
Рабочая документация по жилому дому

Описание

АР жилого дома по каркасно-панельной технологии ЦСП-панелей. Подробные спецификации и узлы. Контроль строительства.

Презентация проекта

pic4441552.jpg
Давыдова Екатерина Портфолио работ Частные жилые дома-3.jpg
2023-05-15_00-04-37.png
2023-05-15_00-05-01.png
2023-05-15_00-05-36.png
2023-05-15_00-05-57.png
2023-05-15_00-06-19.png

Оценили проект:

0