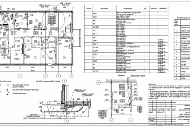
Электроснабжение служебно-бытового здания
Для полной функциональности этого сайта необходимо включить JavaScript.
Томск
На сайте с: 11.09.2018
Артем Третьяков
artemtretyakov
Рейтинг: 728
Паспорт верифицирован
Всего отзывов:
1
0
Выполнил заданий:
1
Нейросаммари
Работ в портфолио:
13
Типовых услуг:
1
Работ на продажу:
0
Был на сайте:
2025-09-01 в 12:56
89131057220
inbox
artem.tretiakoff2018@yandex.ru
Предложить работу
Добавить в избранное
Добавить рекомендацию
Пожаловаться
Инженерия
51
0
Электроснабжение служебно-бытового здания
Используемые навыки:
Электроснабжение
Описание
Решение
Результат
Соавторы
Презентация проекта
Примеры реализации
Описание
Презентация проекта
Оценили проект:
0
×
Оценили проект
×
Авторизация
Для того чтобы оценивать проекты, вам нужно войти на сайт
Другие проекты
Все проекты
Охранно-пожарная сигнализация в здании суда
Электроснабжение 9-ти этажного жилого дома
РТП-4000
FREELANCE.RU
Toggle navigation
Нанять фрилансера
Заказчику
Найти по специализации
Найти по услугам
Провести конкурс
Разместить задание
Собрать команду
Другое
Найти работу
Фрилансеру
Найти задание
Присоединиться к команде
Участвовать в конкурсе
Другое
Возможности
Для заказчика
Для фрилансера
Вход
Разместить задание
▲