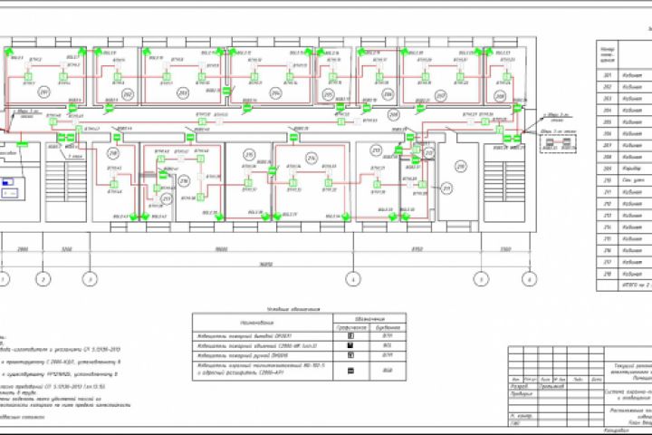
Охранно-пожарная сигнализация в здании суда
Для полной функциональности этого сайта необходимо включить JavaScript.
Томск
Артем Третьяков
artemtretyakov
Рейтинг: 728
Паспорт верифицирован
Всего отзывов:
1
0
Выполнил заданий:
1
Нейросаммари
Работ в портфолио:
13
Типовых услуг:
1
Работ на продажу:
0
Зарегистрирован:
11.09.2018
Был на сайте:
2025-12-30 в 09:54
89131057220
inbox
artem.tretiakoff2018@yandex.ru
Предложить работу
Добавить в избранное
Добавить рекомендацию
Пожаловаться
Инженерия
223
0
Охранно-пожарная сигнализация в здании суда
Используемые навыки:
Слаботочные системы
Описание
Решение
Результат
Соавторы
Презентация проекта
Примеры реализации
Описание
Презентация проекта
Оценили проект:
0
×
Оценили проект
×
Авторизация
Для того чтобы оценивать проекты, вам нужно войти на сайт
Другие проекты
Все проекты
Замена кабеля на СИП
СКУД отделения почты
Установка опоры
FREELANCE.RU
Toggle navigation
Нанять фрилансера
Заказчику
Найти по специализации
Найти по услугам
Провести конкурс
Разместить задание
Виртуальный HR
Найти студию
Другое
Найти работу
Фрилансеру
Найти задание
Присоединиться к команде
Участвовать в конкурсе
Предложить услугу
Другое
Возможности
Для заказчика
Для фрилансера
Вход
Разместить задание
▲