Я не разделяю архитектуру и дизайн, для меня это единое целое

Буевич Максим maksekost80

Рейтинг: 128
не верифицирован
Всего отзывов: 3 0
Выполнил заданий: 3
  • Работ в портфолио: 23
  • Типовых услуг: 0
  • Работ на продажу: 3
Был на сайте:

Архитектурный проект дома 8х10

Используемые навыки:

Описание

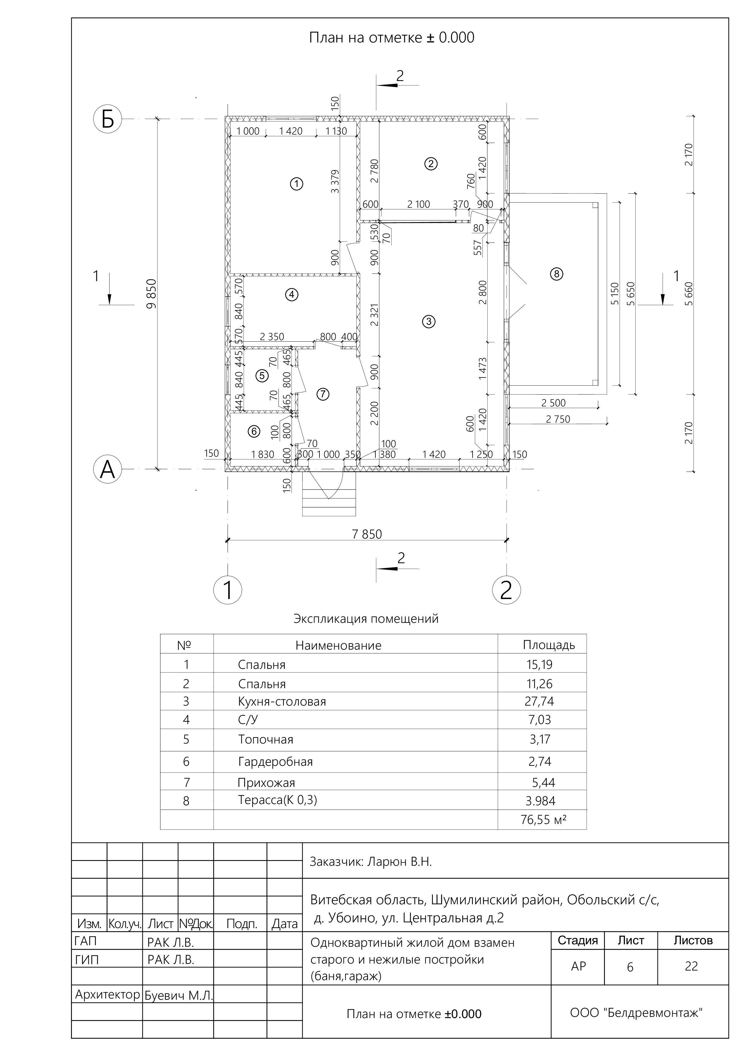
Архитектурный проект каркасного дома с двумя спальнями, большой кухней совмещённой с гостиной. В доме предусмотрены предусмотрен совмещённый с/у, помещения топочной и гардеробной.

Презентация проекта

pic4317593.jpg
Лист 10.jpg
Лист 9.jpg
Лист 6.jpg

Оценили проект:

0