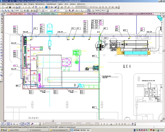
Раздел Электроснабжение
Для полной функциональности этого сайта необходимо включить JavaScript.
Санкт-Петербург
Sergey Kharichev
svv250
Рейтинг: 84
не верифицирован
Всего отзывов:
0
Работ в портфолио:
34
Типовых услуг:
0
Работ на продажу:
0
Зарегистрирован:
28.12.2018
Был на сайте:
2024-02-28 в 18:40
inbox
Предложить работу
Добавить в избранное
Добавить рекомендацию
Пожаловаться
Инженерия
158
0
Раздел Электроснабжение
Используемые навыки:
Электроснабжение
Описание
Решение
Результат
Соавторы
Презентация проекта
Примеры реализации
Описание
Презентация проекта
Оценили проект:
0
×
Оценили проект
×
Авторизация
Для того чтобы оценивать проекты, вам нужно войти на сайт
Другие проекты
Все проекты
Экономическое обоснование перед серьезные капитальными затратами
Разработка проектной документации литейных заводов и цехов
Теплотехнические расчеты и консультации.
FREELANCE.RU
Toggle navigation
Нанять фрилансера
Заказчику
Найти по специализации
Найти по услугам
Провести конкурс
Разместить задание
Виртуальный HR
Найти студию
Другое
Найти работу
Фрилансеру
Найти задание
Присоединиться к команде
Участвовать в конкурсе
Предложить услугу
Другое
Возможности
Для заказчика
Для фрилансера
Вход
Разместить задание
▲