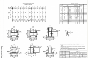
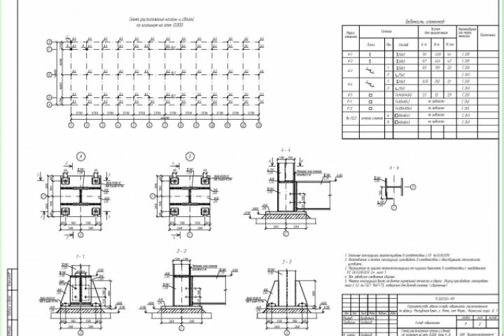
П.2022.03-КМ Склад- общежитие
Для полной функциональности этого сайта необходимо включить JavaScript.
Москва
Я представитель:
ИП Назаров Владимир Владимирович
Штат: 8 человек
Carpe diem
Владимир В. Назаров
mikrob
Top 10
Рейтинг: 3 767
Верифицирован через Сбер ID
Всего отзывов:
59
0
Профессионализм:
10
Коммуникация:
10
Выполнил заданий:
52
Нейросаммари
Работ в портфолио:
379
Типовых услуг:
0
Работ на продажу:
0
Возраст:
47 лет
Стаж работы:
27 лет
Зарегистрирован:
24.09.2015
Юридический статус:
ИП
Стоимость услуг (руб):
1 200
за час
Был на сайте:
2026-04-04 в 18:37
89296609140
inbox
telegram
whatsapp
89296609140@mail.ru
Предложить работу
Добавить в избранное
Добавить рекомендацию
Пожаловаться
Инженерия
92
0
П.2022.03-КМ Склад- общежитие
Используемые навыки:
Строительные конструкции
Описание
Решение
Результат
Соавторы
Презентация проекта
Примеры реализации
Описание
Презентация проекта
Оценили проект:
0
×
Оценили проект
×
Авторизация
Для того чтобы оценивать проекты, вам нужно войти на сайт
Другие проекты
Все проекты
Альбом дизайна интерьера 2-х комнатной квартиры 2022
Ландшафтная визуализация
KP-Pushkin-01
FREELANCE.RU
Toggle navigation
Нанять фрилансера
Заказчику
Каталог фрилансеров
Каталог студий
Каталог услуг
Каталог работ
Виртуальный HR
Умный поиск
Провести конкурс
Разместить задание
Найти работу
Фрилансеру
Найти задание
Присоединиться к команде
Участвовать в конкурсе
Предложить услугу
Вход
Разместить задание
▲