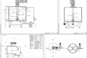
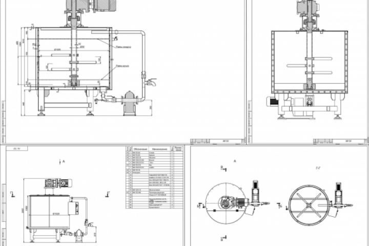
Мельница роторная МК-750СК
Для полной функциональности этого сайта необходимо включить JavaScript.
Москва
Carpe diem
Владимир В. Назаров
mikrob
Top 10
Рейтинг: 3 290
Верифицирован через Сбер ID
Всего отзывов:
59
0
Профессионализм:
10
Коммуникация:
10
Выполнил заданий:
52
Нейросаммари
Работ в портфолио:
379
Типовых услуг:
0
Работ на продажу:
0
Возраст:
40 лет
Стаж работы:
15 лет
Зарегистрирован:
24.09.2015
Юридический статус:
ИП
Стоимость услуг (руб):
5 000
за час
Был на сайте:
2026-05-10 в 21:41
89296609140
inbox
telegram
whatsapp
89296609140@mail.ru
Предложить работу
Добавить в избранное
Добавить рекомендацию
Пожаловаться
Инженерия
86
0
Мельница роторная МК-750СК
Используемые навыки:
Машиностроение
Описание
Решение
Результат
Соавторы
Презентация проекта
Примеры реализации
Описание
Презентация проекта
Оценили проект:
0
×
Оценили проект
×
Авторизация
Для того чтобы оценивать проекты, вам нужно войти на сайт
Другие проекты
Все проекты
Островская школа СЭ ВЭО
Городской сквер Москва 2014 Ситуационная схема Дневной и Ночной виды
ПРОЕКТ РАЗВЛЕКАТЕЛЬНОГО ЦЕНТРА В ГОРОДЕ СЕРПУХОВ
FREELANCE.RU
Toggle navigation
Нанять фрилансера
Заказчику
Каталог фрилансеров
Каталог PRO
Каталог студий
Каталог услуг
Каталог работ
Виртуальный HR
Умный поиск
Провести конкурс
Разместить задание
Найти работу
Найти задание
Присоединиться к команде
Участвовать в конкурсе
Предложить услугу
Вход
Разместить задание
▲