Рейтинг: 1 565
не верифицирован
Всего отзывов: 0
  • Активность:
  • Работ в портфолио: 5
  • Типовых услуг: 0
  • Работ на продажу: 0
Была на сайте:

УЮТНЫЙ FANCY-HOME 1

Используемые навыки:

Описание

Архитектурные решения
Дом имеет лаконичную простую и в тоже время динамичную форму
Эффект достигается за счет доминанты объема, где расположены главное
помещение Кухня-Гостиная, которая противопоставляется общей горизонтали дома.
В индивидуальном жилом доме Кухня-Гостиная выделяется как самое просторное и многофункциональное
пространство. В котором члены семьи прибывают основное время в течение дня.
В данном проекте оно составляет почти не малых 50м2. По законам композиции - для масштабноти человеку,
В таком помещении для достижения полного эффекта простора необходимо увеличить соответственно и его
высоту. Такой прием используется согласно законам композиции - для масштабноти человеку, по пропорциям
высота соотносится к площади по золотому сечению приблизительно 1,618, как всем известно, это число было
выведино из пропорций человеческого тела.
Таким пропорциям соответсвует лист бумаги А4 формата.

Большая площадь остекления в пол в кухне-гостиной дает ощущение гармонии с природой, объединение
внутреннего пространства с окружающей средой

Дом имеет причудливый образ -ласково Фэнси (Fancy). Причудливость и ощущение уюта дома достигается за
счет ажурности навеса, выполненного из натурального материала- дерева. Ажурность навеса добавляет
детальности дому, а детализация в виде небольших треугольников
в свою очередь придает объему масштабности человеку.

Объемно-планировочное решение
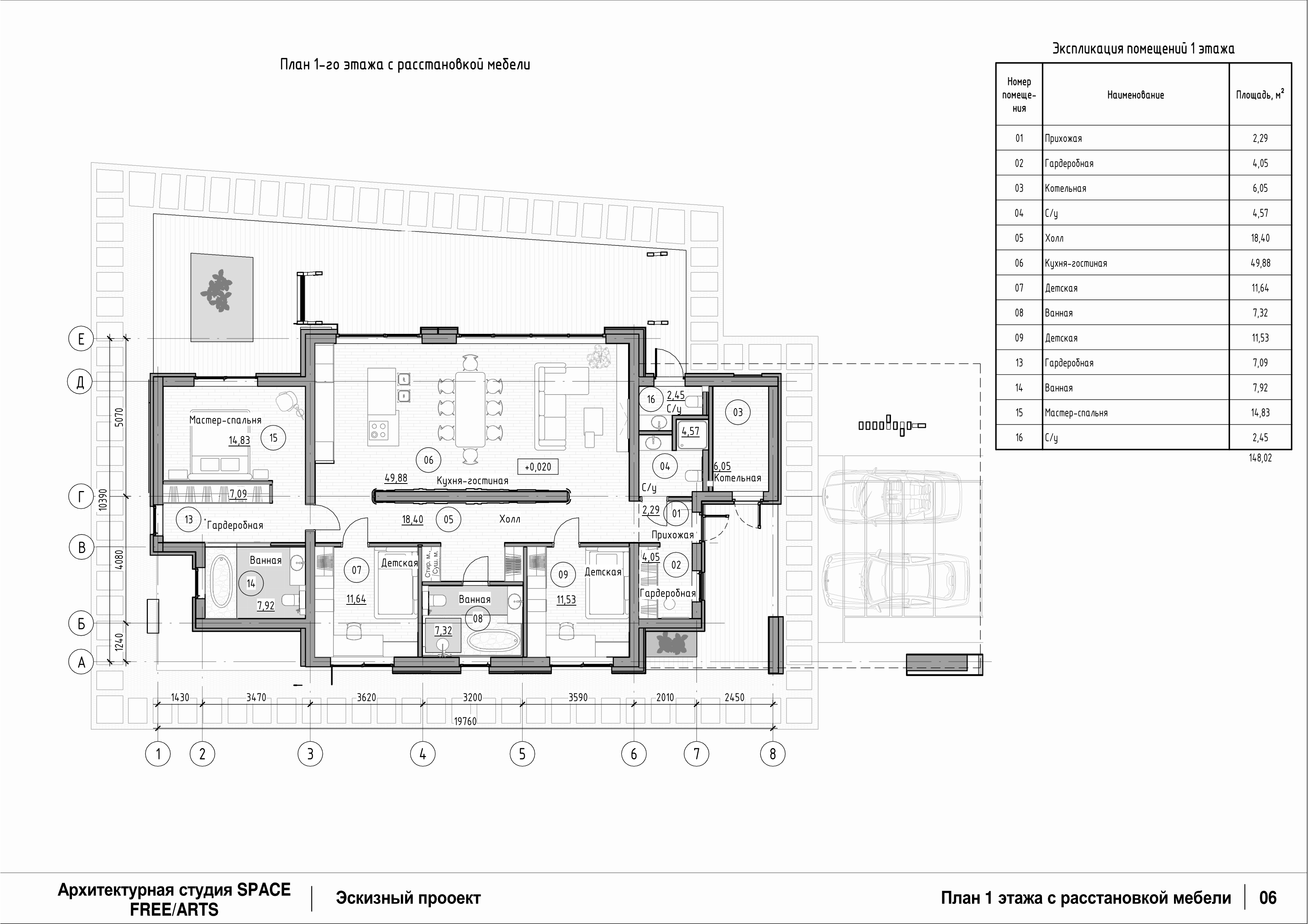
В уютном доме есть все для комфортной жизни семьи с двумя детьми
На 1-ом этаже дома располагаются - прихожая с гардеробной, гостевой санузел совмещенный
с постирочной, котельная с отдельным входом, холл, просторная многофункциональная гостиная, разделенная
на три зоны: кухонная зона, зона столовой и зона диванной группы. Помещение имеет переменную высоту от
3 до 4,2м. Большая площадь остекления в пол в кухне-гостиной дает ощущение гармонии с природой, объединение
внутреннего пространства с окружающей средой.Также в доме имеются две детских, просторная ванная комната
с постирочной зоной при входе, мастер-спальня с видом на б

Ссылки на примеры реализации

 space-freearts.wfolio.pro

Презентация проекта

pic4609226.jpg

Оценили проект:

0