Клиентский центр
Для полной функциональности этого сайта необходимо включить JavaScript.
Москва
Арина Максимова
olgavolkova
Рейтинг: 191
не верифицирован
Всего отзывов:
1
0
Выполнила заданий:
1
Нейросаммари
Работ в портфолио:
12
Типовых услуг:
2
Работ на продажу:
1
Возраст:
38 лет
Зарегистрирован:
15.09.2022
Была на сайте:
2025-06-30 в 11:45
inbox
h0024@yandex.ru
Предложить работу
Добавить в избранное
Добавить рекомендацию
Пожаловаться
Инженерия
171
0
Клиентский центр
Используемые навыки:
Проектирование объектов
Описание
Решение
Результат
Соавторы
Презентация проекта
Примеры реализации
Описание
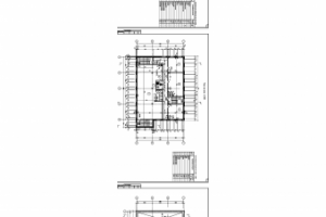
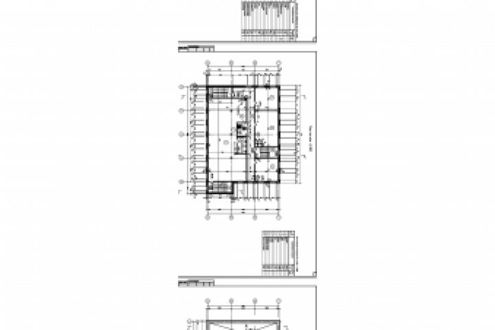
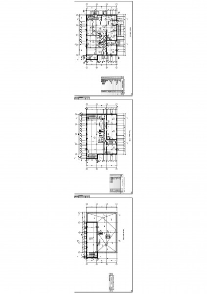
Клиентский центр, планы 1,2,3 этажей
Презентация проекта
Оценили проект:
0
×
Оценили проект
×
Авторизация
Для того чтобы оценивать проекты, вам нужно войти на сайт
Другие проекты
Все проекты
Аквапарк
Работа 4339240
Работа 4338499
FREELANCE.RU
Toggle navigation
Нанять фрилансера
Заказчику
Каталог фрилансеров
Каталог PRO
Каталог студий
Каталог услуг
Каталог работ
Виртуальный HR
Умный поиск
Провести конкурс
Разместить задание
Найти работу
Найти задание
Присоединиться к команде
Участвовать в конкурсе
Предложить услугу
Вход
Разместить задание
▲