Работа 4338499
Для полной функциональности этого сайта необходимо включить JavaScript.
Москва
Арина Максимова
olgavolkova
Рейтинг: 191
не верифицирован
Всего отзывов:
1
0
Выполнила заданий:
1
Нейросаммари
Работ в портфолио:
12
Типовых услуг:
2
Работ на продажу:
1
Возраст:
38 лет
Зарегистрирован:
15.09.2022
Была на сайте:
2025-06-30 в 11:45
inbox
h0024@yandex.ru
Предложить работу
Добавить в избранное
Добавить рекомендацию
Пожаловаться
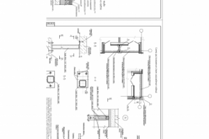
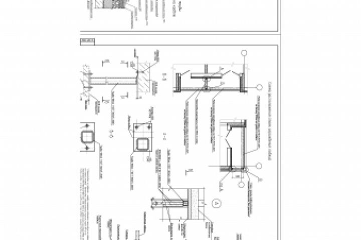
Инженерия
50
0
Работа 4338499
Используемые навыки:
Строительные конструкции
Описание
Решение
Результат
Соавторы
Презентация проекта
Примеры реализации
Описание
Презентация проекта
Оценили проект:
0
×
Оценили проект
×
Авторизация
Для того чтобы оценивать проекты, вам нужно войти на сайт
Другие проекты
Все проекты
Многоэтажка, план типового этажа
Работа 4339239
Работа 4339238
FREELANCE.RU
Toggle navigation
Нанять фрилансера
Заказчику
Каталог фрилансеров
Каталог PRO
Каталог студий
Каталог услуг
Каталог работ
Виртуальный HR
Умный поиск
Провести конкурс
Разместить задание
Найти работу
Найти задание
Присоединиться к команде
Участвовать в конкурсе
Предложить услугу
Вход
Разместить задание
▲