Видеть и делать новое — очень большое удовольствие.

Хлопец Артем Artemproekt

Рейтинг: 192
не верифицирован
Всего отзывов: 2 0
Выполнил заданий: 3
  • Работ в портфолио: 122
  • Типовых услуг: 0
  • Работ на продажу: 0
  • Возраст: 44 года
  • Зарегистрирован: 07.10.2014
Был на сайте:

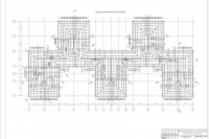
Схема расположения прогонов кровли.

Описание

Жилой дом. (Некоторые значения изменены в связи с конфиденциальностью проекта).

Презентация проекта

pic2061650.jpg

Оценили проект:

0